Варианты постройки
После определения с вариантом бани, а также местом, в котором она будет находиться, необходимо составить чертеж или проект. Благодаря современным технологиям строительства бань, сейчас они уже превратились в комфортные парные. Внешний вид строения бани будет напрямую зависеть от личных пожеланий заказчиков.
Независимо от типа бани, он характеризуется своими особенностями в конструкции, иметь сильные и слабые стороны. О них необходимо знать заранее, чтобы в дальнейшем не возникло серьезных проблем. Многих интересует вопрос, как построить каркасную баню, и в то же время избежать образования конденсата во время использования её в зимнее время. Как правило, конденсат наносит только большой вред конструкции, именно поэтому, чтобы сберечь каркасное строение, нужно позаботиться о хорошей пароизоляции.
Как правильно выбирать брус для строительства?
Самое ответственный этап в строительстве бани из бруса своими руками – это выбор самой древесины. Ведь от этого напрямую будут зависеть эксплуатационные характеристики парной
Первое, на что нужно обратить внимание перед покупкой – это полное отсутствие трещин в готовых бревнах. Ведь даже самые маленькие, незначительные из них обязательно дадут дефект при усадке, постоянно расширяясь в дальнейшем и даже став в последствии причиной загнивания древесины
Во-вторых, на поверхности брусьев не должно быть никаких легких синих пятен – это свидетельство того, что внутри уже полным ходом идет процесс гниения, возможно, спровоцированный грибками – строить из такого материала уже нельзя ни баню, ни дом. Также брус для постройки бани считается бракованным, если на нем видны червоточины или следы поедания жучками.
А вот хороший, качественный брус будет выглядеть гладким и идеально ровным. Если же видны какие-то перекосы или дефекты – все это скажется при укладке венцов, и строительство бани из бруса растянется на неопределенные сроки.
Брус есть профилированный и цельный. У профилированного есть в наличии шипы и венцовые пазы по всей длине, которые дополнительно шлифуются. Такие элементы легче соединить между собой. А самый главный плюс в том, что в такие стены осадкам и влаге почти не проникнуть. А вот из недостатков выделим то, что у этого материала плохая выносливовсть и низкие противопожарные свойства. придется обработать дополнительно пропилентами. Используют для строительства и цельный брус. Но выглядит он обычно не слишком эстетично и вам нужно будет закрыть его сайдингом либо блок-хаусом.
Но сколько нужно бруса на баню и как его рассчитать? Здесь все зависит от проекта. Любой опытный мастер сможет на глаз прикинуть необходимое количество материала, а если договор про доставку древесины заключить с каким-нибудь поставщиком, тот все подсчитает самостоятельно, и привезет только строго необходимое количество элементов – ни больше, ни меньше.
И, если так получилось, что среди привезенных брусьев один-два оказались бракованными, на дрова их пускать не нужно – их можно распилить и хорошие части использовать для изготовления более мелких элементов строительства: реек, дверных и оконных рам, и даже досок для пола. А вот отбракованный материал обязательно нужно будет сжечь – чтобы не допустить заражение качественной древесины. Вот почему еще на этапе договора с фирмой, сколько бруса надо на баню по выбранному проекту, лучше немного переплатить и заказать «запасные» — те, что можно будет впоследствии обтесать и заменить поврежденные, если таковые найдутся (двух-трех будет достаточно).
Выбор и монтаж печи
Виды печей:
- Дровяные — классические, работают на разных дровах, пеллетах.
- Электрические — удобный вариант. При выборе подобного оборудования не нужно монтировать дымоход, можно регулировать температурный режим.
- Газовые — взрывоопасное оборудование. Печь можно подключить к баллону с газом или системе центрального газоснабжения.
Самый популярный вариант — дровяные печи. Особенности монтажа:
- Печное оборудование должно быть установлено на прочном основании. Желательно сделать его из двух рядов шамотного кирпича.
- Поверхности вокруг печи следует закрыть листами негорючего материала.
- После сборки дымохода следует проверить его на герметичность. Стыки труб необходимо промазать жаростойким герметиком.
- Перед печью необходимо постелить лист нержавеющей стали, чтобы защитить пол от выпадающих углей.
- Можно сэкономить место в парилке, если установить печное оборудование с выносным топочным каналом.
Рядом с дровяной печью рекомендуется разместить дровницу, на стене предбанника повесить огнетушитель.
Часто место на территории дачного участка не позволяет построить большую баню. Чтобы уместить в одном здании больше помещений, можно выбрать вариант конструкции с террасой и мансардой. Строительные работы усложняются, но не нужно будет возводить дополнительное здание или оборудовать зону отдыха рядом с баней.
Коммуникации
Правила подразумевают подготовку проекта строения одновременно с проводкой всех нужных коммуникаций. Обязательно понадобятся вода, свет (иногда газ). Прокладка водопроводных труб проходит в ходе строительства сооружения. Не стоит упускать из виду монтаж качественной системы вентиляции во всех помещениях (в том числе в комнатах отдыха), иначе повысится влажность. Влажный воздух будет являться причиной появления грибка на стенах. Некоторые виды строительного материала начнут быстро разрушаться.
Для сохранения оптимального тепла зимой важно предусмотреть обогревательную конструкцию. Только с дополнительным обогревом можно добиться оптимального температурного режима в холод
Кроме вентиляции в банном помещении важно предусмотреть качественную гидроизоляцию и теплоизоляцию. Монтаж коммуникационных систем в двухэтажном строении осуществить проще, чем в одноэтажном строении с пристройками.
Преимущества строительства банного комплекса с мансардой
Строительство бани с мансардой предоставляет владельцу целый комплекс преимуществ. Баня, оборудованная дополнительной зоной отдыха, становится любимым местом отдыха для компании друзей владельца участка. В качестве дополнительной зоны отдыха может выступать пристройка в виде беседки, веранды или мансарды. Пристраивание к бане веранды или беседки имеет существенный недостаток – такие пристройки требуют наличия возле построенной бани дополнительной свободной площади, что не всегда является возможным. При возведении банного комплекса с мансардной надстройкой этот недостаток исчезает автоматически.
Отделка и оборудование мансардного помещения зависят полностью от финансовых возможностей, пожеланий и предпочтений владельца загородного участка. В мансарде можно оборудовать на усмотрение владельца следующие помещения:
- бильярдную;
- гостиную;
- комнату отдыха;
- игровую комнату для детей;
- спортзал.
Идея возведения бани с мансардой больше всего нравится мужской части населения и молодому поколению, так как, собравшись в шумной компании, они могут прекрасно отдохнуть и пошуметь, при этом не доставлять хлопот людям, проживающим в основном доме на участке.
https://youtube.com/watch?v=r0hkO2gfOjE
Еще одним преимуществом мансардной надстройки над баней является то, что на освободившейся части площади участка можно построить бассейн или, например, террасу с барбекю.
После строительства такого объекта в непосредственной близости с баней получится на частном подворье загородного дома настоящий оздоровительный комплекс, позволяющий прекрасно отдохнуть и оздоровиться в компании близких друзей.
Баня с мансардой: преимущества и специфичность проектов
Подбирая в сети необычные решения для застройки дачного участка, все чаще можно встретить привлекательные фото бань с мансардой. Владельцы земельных участков нередко прибегают к использованию этого архитектурного элемента с целью улучшить и расширить возможности в отношении планировки подобного здания.
Мансардный этаж можно приспособить для гостевой спальни или бильярдной
Мансардный этаж подходит для обустройства помещений различного назначения:
- комнаты отдыха;
- спортивного зала с тренажерами;
- бильярдной;
- кладовой для хранения банного инвентаря, полотенец и проч.
Но лучшим решением все-таки станет применение мансарды под организацию комнаты для приятного времяпрепровождения.
Преимущества использования проектов бань с мансардой
Чаще всего пространство под крышей используется в качестве чердака, где просто хранятся вещи. Однако дизайнеры смогли найти ему более удачное применение после того, как возрос спрос на строения с мансардным этажом.
На небольших участках можно разместить малогабаритную постройку
Преимущества подобных проектов очевидны:
- У владельца появляется возможность существенно сэкономить свободное пространство, а также рациональным образом распределить полезную площадь.
- Проекты бань с мансардой 6х8 м и более могут рассматриваться как гостевые домики, пригодные для временного проживания родственников и друзей, приехавших погостить на дачу.
- Бани, имеющие мансарду, выглядят намного привлекательнее, чем приземленные одноэтажные здания. При этом стоимость таких сооружений значительно ниже, чем цена на строительство двухэтажного здания.
Баня с мансардой будет уютным уголком отдыха в любое время года
Если грамотно подойти к использованию пространства под крышей, можно снизить расходы на его отопление. Мансардный этаж может отапливаться за счет банной печи, благодаря чему в этой зоне будут поддерживаться комфортные микроклиматические условия. Если же баня рассчитана исключительно на эксплуатацию в летнее время, пространство под крышей может выполнять функцию жилой комнаты. Превосходным решением станет организация летней кухни с открывающимся красивым видом из окон.
Специфичность компактных проектов домов-бань с мансардой
Даже типовые проекты зданий могут различаться между собой габаритами и внутренними планировками. Чаще всего владельцы дачных участков, ввиду отсутствия свободной площади, отдают предпочтение именно компактным строениям. По этой причине наиболее востребованными считаются проекты бань с мансардой 6х6 м и 4х6 м.
Несмотря на свои размеры и очевидную простоту планировок, такие строения способны обеспечить все условия для полноценного отдыха. Они идеально подойдут для семей с небольшим количеством людей или владельцам загородных участков с малой площадью.
Типовой проект бани с террасой и мансардой
Типовые проекты бань с мансардой 6 на 4 м обычно включают стандартный набор помещений:
- парилку;
- тамбур;
- душевую;
- веранду или террасу.
В некоторых компактных проектах не рассматривается наличие веранды или террасы. В этом случае вся площадь входной зоны отводится под обустройство комнаты отдыха. На мансарде организуется жилое помещение, предназначенное для гостей. Здесь же может располагаться кладовая для хранения банных принадлежностей. Место для установки лестницы подбирается так, чтобы она не загромождала внутренние помещения.
Преимущество бань с мансардой 6х6 м и 4х6 м заключается еще и в том, что подобные строения занимают минимум пространства на дачном участке и позволяют сэкономить придомовую территорию. При этом планировка, как и внутренние размеры помещений, может варьироваться по желанию застройщика.
Мансарда должна быть небольшой высоты, поскольку более высокие помещения считаются полноценным этажом и облагаются налогом
Закладка фундамента банного комплекса
Возведение фундамента – это один из основных этапов строительства бани. От того, насколько качественно будет проделана эта работа, во многом зависит прочность всей конструкции сооружения и срок ее службы
Поэтому крайне важно правильно провести все расчеты и работу по возведению
Кроме материала постройки, на тип фундамента влияют и рельеф участка, и тип грунта. Так как конструкции из дерева более легкие, то для обустройства фундамента при ровном рельефе (с любым типом грунта, даже пучинистым) подойдет ленточный фундамент. Если же перепад рельефа превышает 1 м, а также для построек из кирпича и иных материалов (кирпич, арболитовые или газоблоки) больше подходят буронабивные сваи.
Если определено, что на данном участке лучше строить баню на ленточном фундаменте, можно приступать к работе. Сначала переносят план на местность с помощью теодолита. Если этого строительного прибора нет, для этой цели вполне подойдут колышки со шнурами – они тоже позволяют проводить практически прямые линии, поэтому разбивка оси будет точной.
После разметки переходят непосредственно к строительству фундамента. Сначала нужно сделать траншеи, глубина которых определяется типом грунта и глубиной промерзания в регионе. При пучинистом типе грунта длина траншеи должна быть на 15-20 см больше глубины промерзания. Последний показатель различается в зависимости от климатического пояса, точную цифру можно узнать в специальной литературе.
В готовую траншею насыпают слой песка, толщиной до 15 см, затем устанавливают деревянную опалубку. Кроме деревянных щитов, можно для этой цели использовать любой листовой материал: шифер, широкие доски, фанера и др. Далее укладывают слой гидроизоляции для фундамента. Для придания жесткости конструкции фундамент армируют с помощью каркаса из 14 мм прутьев, соединенных проволокой.
Затем изготавливают бетонную смесь и заливают в траншею. Через 3-4 дня опалубку можно убрать.
Советы
Профессионалы дают несколько рекомендаций относительно того, как сделать проектирование бани с мансардой проще, чтобы при этом итоговый результат был на высоком уровне:
Лучше всего закладывать наличие мансарды сразу в план постройки. Тогда нагрузка будет рассчитана правильно и баню не «поведет», а стены не растрескаются.
Если уж так получилось, что решение о сооружении мансарды было принято позже, сама мансарда должна выполняться из легких материалов: если баня кирпичная – из блоков, если деревянная – методом каркасного строительства или из СИП-панелей. Если основное помещение бани выстроено из легких материалов, от постройки мансардного этажа лучше всего отказаться, так как не факт, что несущие стены выдержат.
Обращайте внимание на кровлю. Не под каждой крышей может быть мансарда
Планируя ее, учтите, что для последующего сооружения чердачной комнаты подойдут, соответственно, мансардная, вальмовая, полувальмовая и двускатная крыши.
Планируя внутреннюю отделку, рассчитывайте на то, что все помещения бани должны быть выдержаны в одном стиле. Идеально использовать для внутренней обшивки банного сооружения вагонку.
Планировку и работу по созданию постройки лучше доверить компетентной компании
При выборе профессионалов следует обращать внимание на квалификацию персонала, портфолио, отзывы и спецтехнику. Также перед заключением договора желательно пообщаться с сотрудниками лично.
Отделочный материал должен быть функциональным и приятным глазу
Уделяя внимание качеству и надежности, не стоит забывать и про эстетическую сторону. Существует множество отделочных материалов, которые совмещают в себе все эти свойства.
Если строительство бани выполняется своими руками, необходимо тщательно соблюдать технологию работ и все рекомендации, иначе результат может стать плачевным (в лучшем случае это обернется пустой тратой денег и стройматериалов).
- Создать уют и тепло на втором этаже помогут идеи из интернета. На просторах «всемирной паутины» есть масса прекрасных советов по оформлению мансарды, начиная от цвета стен и заканчивая подбором аксессуаров. Главное – не бояться экспериментировать.
- Баня должна гармонично вписываться в окружающую обстановку. То, что находиться вокруг бани, создаёт некий колорит. Облагороженная территория вокруг постройки сыграет хозяину загородного дома на руку. Намного приятнее наблюдать из окон верхнего этажа картины красивой природы, а не удручающий вид серой земли.
- Не перегружайте пространство. В бане должно быть просторно и комфортно.
Строительство бани и выбор материала
Брус является стройматериалом квадратной или прямоугольной формы, который изготавливают из древесного массива. Сечение брусьев может составлять величину в пределах 100-400 мм.
Способ обработки разделяет этот материал на несколько вариантов:
- Нестроганый (пиленный), подвержен деформации. Сруб, выполненный из данного вида бруса, дает весьма приличную усадку (прочитайте: «Баня под усадку – последовательность и правила строительства»). В определенных случаях она неравномерна, поскольку стройматериал может существенно повести или же перекрутить. Наличие непрезентабельного вида предполагает последующую наружную или же внутреннюю отделку данного вида бруса.
- Строганный брус нуждается в дальнейшей шлифовке, которая придает материалу гладкую поверхность и предотвращает появление различных трещин. Уровень влажности делает возможным подбор определенных изделий, которые сократят время усадки и возведения строения.
- Профилированный брус оснащен обработанными гранями. Главным достоинством такого материала считается наличие особой замковой системы (а именно, гребенок), которые позволяют осуществлять плотное и весьма прочное прилегание венцов сруба. В мансардной бане, выполненной из профилированного бруса, великолепно удерживается тепло, поскольку проникновение влаги внутрь межвенцового пространства перекрыто, а утеплитель продолжает сохранять свои характеристики.
- Клееный брус образуется в течение нескольких этапов. Первым делом занимаются устранением дефектов в ламелях, после чего их высушивают, склеивают и прессуют. Все крепежные элементы врезают уже в готовые брусья.
Баня из брусьев с мансардой и верандой
Использование данных проектов очень популярно у жителей центральных и северо-западных областей страны. В брусовых банях с мансардой открытая площадка будет востребована в летний период, а закрытую веранду можно задействовать круглогодично.
Рассмотрим проект, в котором площадь веранды 6 кв. м. Этого небольшого пространства будет достаточно для размещения маленького столика, стульев или дивана, пары кресел. На этой площади легко могут отдохнуть 2-3 человека. Строение предполагает наличие другой более вместительной комнаты размером 8,1 кв. м. Благодаря расположенной здесь же лестнице можно добраться до мансарды (25 кв. м), где можно разместить большую компанию.

Несколько вариантов планировки дома из бруса с мансардой
Чтобы жилище было максимально удобным и комфортным, нужно хорошо продумать его внутреннее устройство. Поэтому ниже мы рассмотрим планировки домов из бруса с мансардой.
Важно, чтобы планировка дома была подобрана удачноИсточник yandex.ru
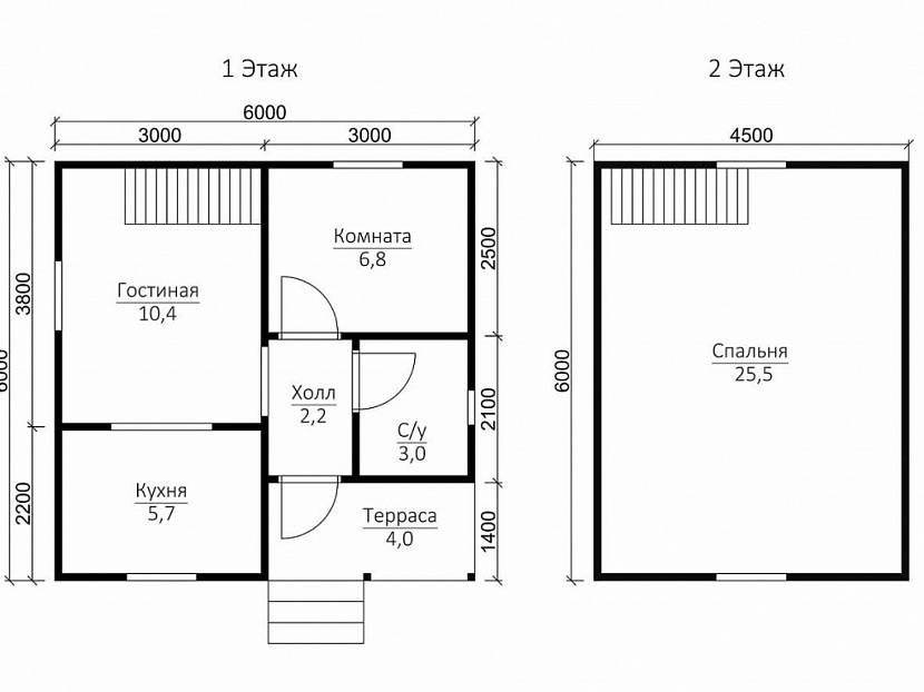
Планировка дом 6х6 с мансардой
С такими размерами можно создать экономичное и уютное жилище. На его постройку пойдёт сравнительно немного материалов, а отопление такого дома будет стоить недорого. При грамотном же планировании на площади 36 кв. м. разместится практичная постройка теплого дома 6 на 6.

Проект дома из бруса 6х6 с мансардным этажомИсточник spb.dacha-iz-brusa.ru
Этот вариант предусматривает наличие свободной комнаты. Поэтому он подходит практически для любого человека. На площади 6,8 кв. м может разместиться кабинет, небольшая парилка или детская комната. Санузел находится внутри помещения, поэтому в такой резиденции можно проживать круглогодично. Есть терраса, на которой хорошо расположится кресло-качалка или мини-диван. Вы сможете в тёплое время года читать или просто отдыхать на свежем воздухе.
Любая хозяйка оценит достаточно просторную и непроходную кухню. На площади 5,7 кв. м поместятся газовая плита, полки, мойка и обеденный стол. Всю мансарду предлагается оставить под спальню. Для наиболее рационального использования места под лестницей может расположиться вещевой шкаф в форме треугольной призмы. Плюсом является наличие гостиной, где можно принимать посетителей или проводить свободное время.
Эта планировка хорошо подходит для дачного домика из бруса с мансардой.
Видео описание
В видео сравниваем цены на материалы в Леруа, Петровиче и на рынке:
Проект дома 7х8 с балконом
Этот вариант уже попросторнее, чем предыдущий. По площади с мансардой он соизмерим с трёхкомнатной квартирой. В таком доме запросто поместится семья из четырёх человек.

Планировка дома 7х8 с мансардойИсточник drevolog.ru
Терраса – это универсальное место для отдыха. Также она придаст более привлекательный и статусный вид жилищу. Санузел, расположен внутри, что можно назвать достоинством планировки. Кухня имеет достаточно большую площадь, поэтому она способна играть роль столовой. Однако её минус в том, что она проходная и не разделена с гостиной. При желании на месте проёма можно поставить дверь, чтобы запахи и звуки не доходили до места отдыха.
Так как гостиная имеет большую площадь, в ней удачно разместятся книжные шкафы, полки для хобби и даже большое количество комнатных растений. Такая планировка хорошо подходит для тех, кто любит принимать у себя гостей, к тому же свободная спальня даёт им возможность оставаться у Вас на ночь. Большой холл на мансардном этаже можно использовать, например, в качестве фотогалереи.
Балкон из бруса – изюминка этой планировки. Он способен играть роль, как наблюдательной площадкой, так и рабочего кабинета. Ещё один вариант его использования – выращивание на нём светолюбивых растений.

Такой балкон из бруса смотрится очень симпатичноИсточник brewdom.ru
Таким образом из бруса можно построить дом 7х8 с мансардой, который будет являться просторным и практичным жилищем.
Планировка дома с мансардой 9х8
Это уже достаточно просторный вариант, в котором может поместиться большая семья.

Проект дома 9х8Источник starer.ru
Эта планировка предусматривает два санузла в доме, что считается очень удобным. Также из особенностей стоит отметить наличие котельной. Дело в том, что при таких габаритах жилище придётся усиленно отапливать, а все котлы занимают место. Поэтому их предлагается убрать в специальную комнату.
В большой прихожей без труда можно разместить всю верхнюю одежду и обувь Кухня-столовая площадью 20 кв. м вместит в себя Вашу семью и гостей. При этом останется место для приготовления пищи. Мансардный этаж состоит из четырёх жилых комнат. На месте некоторых можно оборудовать детские. Деревянный балкон будет настоящим украшением жилища.

Такой дом будет хорошим жилищем для семьи с детьми и прародителямиИсточник newsvideo.su
Дом из бруса – это удачное и экологически чистое решение. Оно подходит Вам, если Вы дорожите своим здоровьем и здоровьем своих близких. К тому же для большой части территории России деревянное жилище является традиционным. Мансарда же способна увеличить его полезную площадь и улучшить внешний вид. Сейчас строительство домов из бруса вовсю набирает обороты. Всё это можно назвать весомой причиной обзавестись просторным и красивым домом из бруса с мансардой.
Двускатная
Остановить свой выбор на двускатной кровле – значит обеспечить свою баню надежной защитой от осадков и атмосферных воздействий. Вот мы и подошли к двухскатной крыши своими руками пошаговой установки.
Возможно, в некоторых случаях обустроить односкатную крышу будет проще и дешевле, однако стоимость не существенно отличается в этих двух случаях.
Выбирая угол уклона, рекомендуется руководствоваться теми же критериями, что и при определении угла односкатной кровли, а именно:
- Количество осадков;
- Сила ветра.
Двускатная конструкция кровли обладает целым рядом преимуществ:
- Первое – это, конечно же, возможность обустройства жилого чердака;
- Потолок в бане имеет более высокие показатели теплоизоляции;
- Долгий срок службы при правильной установке ската;
- Более аккуратный внешний вид, нежели у односкатного типа.
Помимо преимуществ, у двускатной кровли имеются и некоторые недостатки:
- Высота крыши и угол наклона ее скатов напрямую зависят от площади строения. Следовательно, чем больше площадь бани, тем больше материалов необходимо для ее устройства;
- При обустройстве мансарды необходимо увеличить высоту конструкции, а значит и усилить элементы стропильной системы. А это в свою очередь ведет к большим материальным затратам;
- Слуховые окна необходимы при обустройстве мансарды, а они существенно усложняют конструкцию двускатной крыши.
Чем больше осадков, тем круче скат. Чем сильнее ветер, тем скат более пологий.
Разберем процесс монтажа двускатной крыши бани своими руками поэтапно:
- Первым крепится мауэрлат к стенам, соблюдая горизонтальность;
- Далее в мауэрлате делаются пазы для установки стропил;
- Сборка самих стропил. Для большей надежности рекомендуется прикрепить к ним распорки и перемычки;
- Стропила крепятся непосредственно к мауэрлату при помощи шурупов;
- По коньку протягивается веревка, по уровню которой монтируются следующие стропила;
- Далее на стропила крепится пароизоляционная пленка;
- Монтируется и устанавливается обрешетка;
- Крепится слой гидроизоляции;
- Производится монтаж кровельного покрытия.
Самостоятельно обустроить двускатную крышу не так сложно, как кажется на первый взгляд. Помимо этого, процесс монтажа не существенно отличается от обустройства односкатного типа кровли.
Закладка первых венцов будущей бани
Итак, сборка бани из бруса достаточно проста – будь она по маркированному проекту, или импровизированная. Главное – не лениться использовать строительный уровень и не спешить закреплять венцы.
Первое, что нужно сделать перед началом строительства стен бани – это проверить горизонтальную поверхность бруса на ровность. Но только не на глаз – для этого понадобится уровень. И от того, насколько первый венец окажется в этом план идеальным, зависит правильность всей конструкции бани.
Выбирать брусья для первого ряда сруба нужно самые толстые из всех последующих, ведь именно на них и ляжет вся тяжесть и стен, и крыши. Вот почему опытные мастера обычно советуют подбирать для этого первый бурс с сечением 20х20 см, а все последующие – 15х15 см. Только длина брусьев должна быть одинакова.
Саму укладку первых венцов сруба начинать нужно с размещения тонких деревянных реек по всему цоколю фундамента (только предварительно их нужно обработать антисептиком). Толщина реек должна быть не более 15 мм, а расстояние нужно соблюдать между ними примерно 25-30 см. Зачем это нужно? Чтобы нижние ряды брусьев были хорошо защищены от сырости и гниения, что значительно увеличит срок службы всей бани, а пространство между рейками желательно заполнить монтажной пеной или утеплителем.
Укладывать слишком плотно сруб бани не нужно – в дальнейшем вся конструкция сама даст усадку. Нижний же брус, который кладется на фундамент, не нуждается ни в каком закреплении – давление верхних рядов ему и так обеспечит необходимую прочность. Да и заменить когда-то весь первый ряд будет намного проще, ведь разбирать всю баню не придется.
Кроме всего, брусья самого первого ряда обязательно нужно обработать со всех сторон (особенно тщательно ту часть, которая прилегает к фундаменту). Использовать для этого можно современный антисептик, а можно взять и традиционное машинное масло.
Материалы для строительства
Баня с мансардой своими руками создается из разных строительных материалов, в числе которых:
- клееный брус;
- кирпичные блоки;
- оцилиндрованные бревна;
- пеноблоки;
- газобетон;
- каркасные блоки;
- древесно-стружечные плиты;
- сип-панели.
В декоративной отделке сруба используются следующие материалы;
- вагонка;
- блок-панели.
Дерево или кирпич
Проект бани 6х4 с мансардой может строиться из древесины либо кирпича.
Древесина экологична, долговечна, практична, безопасна в эксплуатации, после обработки пропитками устойчива к влажности и изменениям температурных режимов. При использовании утеплителя повышаются шумо- и теплозащитные характеристики здания. В работе используются клееный и оцилиндрованный брус, доски, прессованная стружка.
В перечне преимуществ древесины:
- устойчивость к изменениям температурных режимов;
- благоприятное воздействие на организм человека (расслабляет, улучшает состояние нервной системы);
- сохранение тепла;
- пар в помещениях из дерева мягкий и влажный.
Конструкции из дерева выдерживают массу надстроек, поэтому возвести мансарду при необходимости можно позже. Необходимо учитывать высокую стоимость стройматериала. Пожароопасность древесины требует обеспечения дополнительного варианта эвакуации с мансардного этажа, а также обработки бревен специальными составами, замедляющими распространение огня.
Кирпичные блоки долговечны (срок службы составляет 50 лет), прочны, эстетичны. Они являются экологичными материалами, т.к. производятся из натуральных компонентов (глина, песок, известняк, безопасные красители). В зависимости от климатических условий, дизайнерского решения и нагрузки здания используются клинкерные, керамические, огнеупорные, облицовочные кирпичи.
Стройматериал позволяет усложнить конструкцию банного комплекса. Здание может быть квадратной, прямоугольной, асимметричной, многоугольной конфигурации. Изменение стандартной формы не снизит эксплуатационных характеристик здания, тепло- и шумоизоляция останутся высокими.
Требуется учитывать большие затраты на топливо при эксплуатации кирпичной бани, необходимость в гидроизоляции помещения. Кирпичи массивны, требуют выполнения надежного фундамента из бетона для долговечной и безопасной эксплуатации.
Газовые и пеноблоки
Баня 6 на 8 с мансардой может быть выполнена из газобетонных и пеноблоков. Материалы бюджетны, практичны, легко монтируются и заменяются при необходимости
Важно учитывать неустойчивость материалов к воздействиям высоких температур и влажности. Оптимально выполнить из газобетона пристройку, входной блок, скомбинировав с досками и брусом
Можно построить 1 этаж из дерева, дополнить конструкцию мансардой из пенобетона.
Преимущество газо- и пеноблоков:
- доступная стоимость;
- простой монтаж, т.к. работы можно выполнить самостоятельно;
- небольшая масса блоков, снижающая нагрузку на несущие конструкции банного комплекса;
- устойчивость к возгоранию и перепадам температур, высокие пожаробезопасные характеристики;
- стойкость к воздействию грибка, плесени;
- крупногабаритные блоки можно распиливать, придавать им требуемую конфигурацию для авторского проекта, упрощая монтаж;
- материалы не имеют токсичных испарений;
- блоки не деформируются, не растрескиваются.
При монтаже пеноблоков важно выполнить теплоизоляцию здания для предотвращения утечек тепла и повышения шумоизоляционных характеристик
Каркас или сип-панели
Проект бани 6х6 с мансардой может быть выполнен по каркасной технологии и с применением сип-панелей.
Проекты каркасных бань с мансардой реализуются из деревянного бруса либо металлических конструкций. Технология требует обшивки внешней части здания декоративными панелями, материалы должны быть экологичными, огнестойкими, не деформироваться от перепадов температур и высокой влажности. Между элементами конструкции крепится уплотнитель, требуется внутренняя отделка.
СИП-панели позволяют возвести здание в краткие сроки. Материалы отличаются небольшим весом, могут использоваться при облегченном фундаменте ленточного типа. Панели имеют многослойное строение и обеспечивают качественную тепло- и шумоизоляцию. Выпускают панели с влагостойкими характеристиками для оформления бань.
Видео описание
В видео сравниваем цены на материалы в Леруа, Петровиче и на рынке:
Проект дома 7х8 с балконом
Этот вариант уже попросторнее, чем предыдущий. По площади с мансардой он соизмерим с трёхкомнатной квартирой. В таком доме запросто поместится семья из четырёх человек.
Планировка дома 7х8 с мансардойИсточник drevolog.ru
Терраса – это универсальное место для отдыха. Также она придаст более привлекательный и статусный вид жилищу. Санузел, расположен внутри, что можно назвать достоинством планировки. Кухня имеет достаточно большую площадь, поэтому она способна играть роль столовой. Однако её минус в том, что она проходная и не разделена с гостиной. При желании на месте проёма можно поставить дверь, чтобы запахи и звуки не доходили до места отдыха.
Так как гостиная имеет большую площадь, в ней удачно разместятся книжные шкафы, полки для хобби и даже большое количество комнатных растений. Такая планировка хорошо подходит для тех, кто любит принимать у себя гостей, к тому же свободная спальня даёт им возможность оставаться у Вас на ночь. Большой холл на мансардном этаже можно использовать, например, в качестве фотогалереи.
Балкон из бруса – изюминка этой планировки. Он способен играть роль, как наблюдательной площадкой, так и рабочего кабинета. Ещё один вариант его использования – выращивание на нём светолюбивых растений.
Такой балкон из бруса смотрится очень симпатичноИсточник brewdom.ru
Таким образом из бруса можно построить дом 7х8 с мансардой, который будет являться просторным и практичным жилищем.
Планировка дома с мансардой 9х8
Это уже достаточно просторный вариант, в котором может поместиться большая семья.
Проект дома 9х8Источник starer.ru
Эта планировка предусматривает два санузла в доме, что считается очень удобным. Также из особенностей стоит отметить наличие котельной. Дело в том, что при таких габаритах жилище придётся усиленно отапливать, а все котлы занимают место. Поэтому их предлагается убрать в специальную комнату.
В большой прихожей без труда можно разместить всю верхнюю одежду и обувь Кухня-столовая площадью 20 кв. м вместит в себя Вашу семью и гостей. При этом останется место для приготовления пищи. Мансардный этаж состоит из четырёх жилых комнат. На месте некоторых можно оборудовать детские. Деревянный балкон будет настоящим украшением жилища.
Такой дом будет хорошим жилищем для семьи с детьми и прародителямиИсточник newsvideo.su

























































