Тонкости подготовительного этапа строительства
Есть несколько правил размещения постройки, которые облегчат эксплуатацию бани в дальнейшем. Узнайте всё на тему «Баня 6 на 4 с мансардой» на нашем сайте.
Планировка бани
Баню можно установить отдельно или совместить с другим сооружением: сделать ее частью дома, соединить с летней кухней или мастерской. Но опыт показывает, что такое соседство может привести к появлению сырости и неприятного запаха. Грамотная планировка устройств систем канализации, вентиляции и гидроизоляции поможет избежать подобной ситуации.
При строительстве бани необходимо заложить фундамент на глубину промерзания грунта. В зависимости от влажности почвы можно сделать упрощенный вариант основания. Но, как показывает практика, баня 6х3 строится на крепком фундаменте из камня, кирпича или бетона. Примерно через 2-3 месяца, как только основание просохнет и отстоится, можно приступать к строительству.
Постройка сооружается из экологических материалов, которые «дышат», хорошо удерживают и отдают тепло. Одним из лучших по праву считается дерево. Иногда бани 3х6 строятся из натурального камня и кирпича, которые отличаются долговечностью и большей пожаробезопасностью.
От правильной заготовки леса и сушки древесины зависит длительность срока эксплуатации бани 3 на 6. Заготавливать древесину нужно с декабря до начала марта. Несколько месяцев срубленные деревья должны полежать, только после этого можно приступать к изготовлению бревен и бруса для строительства бани.
Чтобы сохранить данный строительный материал, необходимо придерживаться нескольких правил.
- Бревно очищается от коры. Чтобы оно не растрескивалось по краям, на его концах оставляют полосу коры шириной 15 см.
- Чтобы не допустить прелости, бревна хранят в штабелях. При этом расстояние между бревнами должно составлять 5 см, между рядами штабеля – 10 см, между землей и первым штабелем – 20 см.
- Следует накрыть бревна каким-либо кровельным материалом, например, шифером, что на них не попадали осадки. Между шифером и бревнами должно быть минимум 5 см.
- Защитите бревна от прямого попадания солнечных лучей. Расположите материал в хорошо продуваемом месте.
Стандарты по размерам помещений
Размеры банных окон могут составлять 40х60 или 70х80 см, окно в помывочной стоит расположить повыше. Входную дверь нужно сделать небольшой и низкой, чтобы тепло не уходило наружу. Внутренние двери лучше расположить перпендикулярно, чтобы избежать сквозняков и простудных заболеваний (на небольшом расстоянии друг от друга). Стандарты по высоте потолков варьируются минимально: от 2,1 до 2,4 м. Объемы помещений могут планироваться по-разному, все зависит от нужд хозяев и количества комнат.
Парилка
Не стоит делать ее слишком узкой, чтобы баня не перегревалась быстро. Рассчитать минимальный размер несложно, исходя из количества человек, которые могут париться одновременно: 1 м – сидячее место, 2,2 – лежачее. Количество мест + место под печку + небольшой проход к полкам. Расстояние от печи до полок должно составлять не меньше 20-30 см. Верхний ярус – не меньше 115 см от потолка.
Мойка
Оптимальный объем помывочной равен 1,5х1,5 м. Если выделить на нее чуть больше места, будет достаточно пространства для душевой кабины 1,2х1,2 м и топчанов.
Комната отдыха
Соотношение объемов теплых и прохладных помещений варьируется по желанию хозяев. Возможен вариант с просторными парилкой, душевой и небольшим предбанником, либо с максимально просторной комнатой отдыха и отдельной раздевалкой.
Проектируем помещения
Габариты 4х6 позволяют немного пофантазировать при планировке банных комнат и их расположении. В решении этой задачи всегда учитывается несколько факторов. Первый – это количество человек одновременно принимающих банные процедуры. Второй – назначение помещения. Поскольку не все любят сильную жару и махать веником обжигающим тело, упор можно сделать на то, что моечное отделение будет немного больших габаритов, а небольшой парной вполне хватит, чтобы погреться.
Оптимальным вариантом будет парная, где одновременно смогут находиться 2–3 человека. При этом можно сделать просторное моечное отделение с небольшим бассейном. Для предбанника, в проекте бани 4х6 тоже останется достаточно места. На выделенной площади поместятся скамейки со столом. По возможности предусмотрите отдельное помещение для расположения входного щитка, для подачи электропроводки в баню.
Проектируем внутреннюю отделку бани 4х4 м
Решение о том, какой будет внутренняя отделка помещений, также принимается на этапе проектирования. Зачастую, типовые проекты из каталога уже предусматривают различные варианты внутренней отделки.
Для отделки парилки нет лучшего материала чем дерево, поэтому чаще всего под отделкой подразумевают украшение полок и стен резными или прочими декоративными элементамиИсточник de.decorexpro.com
При выборе материала предпочтение отдается таким характеристикам:
- Огнестойкость.
- Экологичность.
- Простота работы и быстрый монтаж.
Современный строительный рынок предлагает большой ассортимент обшивочного материала. Лидером является вагонка липовая или осиновая. Обязательно выполняется теплоизоляция стен. Для этой процедуры подходит минвата или эковата. Для обшивки стен парилки применяется фольгированный материал, отражающий пары и улучшающий теплоизоляционные свойства строения.
Особое внимание уделяется отделке в месте установки печи, которая может быть дровяной или электрической. В качестве облицовки применяется устойчивый к возгоранию материал
Это могут быть металлические листы, кирпич, натуральный камень, керамическая плитка или керамогранит.
3×6, 6×6, 6×4
Рассматривать баню не только как утилитарную постройку, но и как место общения можно, если ее полезная площадь более 16 м2.
Важно! Чем просторней парилка, тем большим числом вентиляционных отверстий (с задвижками) её необходимо снабдить: каждому кубометру объёма — 24 см2. Каркасная баня 6 × 3 метра «может себе позволить» отдать часть полезной площади террасе
Фасадную (короткую) стену можно «сдвинуть» вглубь на полтора метра, тогда закрытая площадь бани — чуть более 13 м2. Получится каркасная баня 3 × 4 с закрытой по бокам зоной отдыха перед входом
Каркасная баня 6 × 3 метра «может себе позволить» отдать часть полезной площади террасе. Фасадную (короткую) стену можно «сдвинуть» вглубь на полтора метра, тогда закрытая площадь бани — чуть более 13 м2. Получится каркасная баня 3 × 4 с закрытой по бокам зоной отдыха перед входом.
Террасой дополняют и маленькую, и большую каркасную баню — вдоль всей стены, или с «захватом» одного угла.
Используя всё пространство под закрытые помещения, площадь 6 × 3 м вместит пятерых посетителей. Поперечный предбанник шириной более 2 метров теперь слабо пострадает, если в парную и моечную из него будут вести отдельные двери.
Видеоролик о пропорциях лёгкой бани — каркасной — 3 × 6 своими руками (пошаговая инструкция возведения наружных стен из бруса 150 × 100 мм и цементно-стружечных плит), удачно отмечено положение фундамента стационарной печи с загрузкой дров из прихлжей:
Печь-каменку можно дополнить камином (отводя дым одним дымоходом), либо второй печкой.
Кроме камина в предбаннике поместятся лежанка, скамейка, стол с табуретками — раздевалка 2 × 3 станет комнатой отдыха.
Моечная вместит душевой поддон, парная — два яруса полков. (Полки удобнее делать напольными — чтобы не нагружать стену).
Нестандартные планировки бань возможны в более просторных постройках
Например, каркасная баня 6 × 4 делится перегородкой или несущей каркасной стеной на две комнаты равной площади: предбанник, парилку-моечную.
Просторные одноразмерные помещения выбирают любители нежаркого пара.
Так же можно поступить с баней 3 × 5 или 3 × 4 — разделить на две одинаковые комнаты. Для дачного участка, позволяющего построить сооружение 4 × 5, но где дорог каждый открытый кусочек земли, есть красивое решение — баня не четырёхугольная, а «буквой Г». Фактически это может быть каркасная баня 2 × 4 и примыкающий торцом к её длинной стороне предбанник 3 × 2.
Информация. Дровяную печь стремятся расположить так, чтобы сократить до минимума длину дымовой трубы внутри помещения, в том числе мансардном.
Двухуровневой легко станет баня 6 × 6. Мансардному перекрытию придётся опереться на наружные и промежуточные несущие стены. Лестница наверх ведёт из наиболее сухой зоны первого этажа — раздевалки.
Баня 6х6: преимущества
Такая баня обладает хорошей вместимостью, в ней могут комфортно себя чувствовать до 8 человек. Если у вас большая семья или много друзей, этот проект вам подойдет.
При этом баня 6х6 имеет довольно компактные размеры, ее можно возвести даже на небольшом участке, но все же она будет иметь хорошую вместимость.
Стоимость постройки такой бани также будет невелика, особенно если выбрать недорогой материал, к примеру, построить каркасную баню.
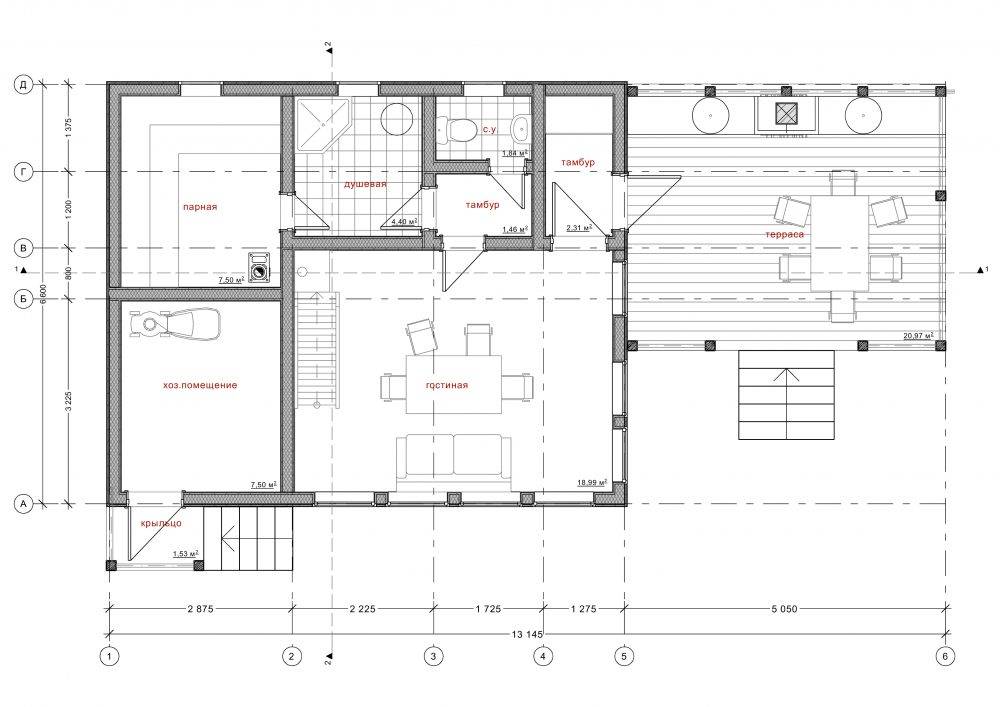
Баня 6 на 6 – это хороший вариант для небольшого участка. В ней можно поместить не только парную, моечную и тамбур, но и сделать санузел, мансарду, террасу, в этом случае отдых в бане станет более комфортным.
Баня: планировка и разделение общей площади на функциональные зоны
Если раньше бани состояли всего из одного помещения, то современные варианты этих сооружений включают несколько комнат. В их числе может быть моечная, предбанник, зона отдыха, бассейн, бильярдная и т. п. Чтобы в будущем владельцу не приходилось прибегать к перестройке и корректировке здания, еще на этапе проектирования необходимо внести в чертежи бани все важные пометки. Особого внимания заслуживают следующие моменты:

Для удобства современные бани включают в себя несколько функциональных зон
- планировка внутренних помещений;
- система водоснабжения;
- разводка электросети;
- канализация и система стоков.
Разработка плана бани с учетом условий дачного участка
Чтобы создать идеальные условия для отдыха в бане, нужно учитывать некоторые нюансы, которые позволят избежать неприятностей в процессе эксплуатации помещения. Желательно, чтобы зона строительства располагалась на почвах с низким уровнем пролегания грунтовых вод. Перед тем как приступить к разработке проекта, нужно сразу же исключить все участки, которые не соответствуют этому условию.

Проект бани размером 5 на 7 метров с открытой террасой
Если на территории имеется колодец, то расстояние между ним и баней не должно быть менее 5 м. Минимальный разрыв между парилкой и жилым зданием составляет 8 м. Чем дальше от бани будет размещаться компостная яма и туалет, тем лучше. Специалисты советуют делать вход с южной стороны. В зимнее время здесь образуется меньше сугробов, поэтому исключается вероятность блокировки доступа к двери. Лучше, если окна будут смотреть на запад, что будет способствовать проникновению в помещение достаточного количества солнечного света.
Если на дачном участке имеется водоем, построив баню в 15-20 м от него, можно использовать его вместо бассейна. Кроме этого, наличие реки или озера поблизости от сооружения позволит обеспечить систему подачи воды.

Проект бани размером 7,74 на 6,24 метра
Для небольших участков (3-6 соток) подойдут проекты бань 3 на 3, фото таких построек в изобилии присутствуют на сайтах строительных компаний. Даже в таких компактных строениях основным помещением остается парная. Под организацию этой комнаты следует отвести максимально возможное количество площади – около 8 м². Этого достаточно для того, чтобы установить 2-3 лежака (полки) и поставить печь-каменку.
Другие помещения могут быть включены в планировку бани 3х4 м и более (по желанию). Сооружение может использоваться по назначению даже при отсутствии бильярдной или санузла. Баня же без парилки существовать не может. По этой причине разделение внутреннего пространства на функциональные зоны в первую очередь зависит от размеров проекта.

Строить бани рекомендуется на расстоянии минимум 8 м от жилого сооружения
Если же хочется дополнительных удобств, в проект бани 3 на 4 м можно включить небольшую душевую комнату или помывочную. После парилки здесь можно будет смыть с себя грязь и освежиться. Для типовых проектов характерно наличие комнаты отдыха, которая будет эксплуатироваться в перерывах между сеансами пара. Для ее организации потребуется 4,5 м².
Нелишними будут и другие помещения, например, раздевалка или тамбур. Они достаточно компактны, чтобы поместиться в проекте бани 5 на 5 из бруса наряду с основными комнатами.

Проект бани размером 6х6 м со вторым мансардным этажом
Достоинства бани с мансардой из бревна

Отличная комната отдыха и прекрасный микроклимат в мансарде бани из дерева
Пожалуй, Вас заинтересует проект бани из бревна 6х4 с мансардой, и именно из-за имеющихся у этого материала достоинств:
- Экологичность – находясь во внутренних помещениях бани, нет опасений попадания в воздух каких-либо химических веществ, опасных для здоровья. Напротив, эфирные масла, имеющиеся в древесине, благоприятно влияют на организм человека.
- Дерево обладает низкой теплопроводностью, поэтому, хорошо законопатив сруб, можно рассчитывать на отличное сохранение тепла. Следовательно, даже в сильные холода, баня легко и быстро протапливается и остывает достаточно долго.
- Деревянные стены обеспечивают возможность естественного воздухообмена. В результате чего исключаются сквозняки, что бережет от простуд.
- Длительные сроки эксплуатации при соблюдении всех правил установки сруба, исчисляемые десятилетиями. Если же сложить баню из осины или лиственницы, то такая баня со временем становится еще прочнее.
- Относительно невысокая цена на баню из оцилиндрованного бревна.
- Процесс установки занимает не так много времени, потому что имеющиеся у бревен пазы и выпиленные в нужных местах чашки значительно сокращают время строительства.
Выбор материала
Выбирая материалы для строительства бани, нужно ориентироваться на общий дизайн участка, в который постройка должна гармонично вписаться, личные предпочтения и свойства каждого вида стройматериалов.
Деревянная, бревенчатая баня – это старая добрая классика. Дерево экологично, долговечно, хорошо сохраняет тепло, да и на внутренней и внешней отделке можно будет сэкономить – натуральная древесина сама по себе очень эстетична.
Помимо бревен, можно использовать брус. Разница между брусом и бревном только в том, что первый на срезе получается квадратной формы, а второе – круглой.
Количество кубов леса, необходимое для строительства, рассчитывается индивидуально для каждого проекта. Для этого надо знать размеры фундамента (высоту, длину, ширину), количество рядов арматуры, её диаметр, размеры досок для опалубки и так далее.
Рубленая баня, конечно, хороший, но не единственный вариант. Постройка может быть выполнена из кирпича, керамзитобетонных или газосиликатных блоков, из газоблока, шлакоблока и другого. Каждый из этих материалов имеет свои достоинства и недостатки.
Керамзитобетон, например, хорошо держит тепло, прочен, долговечен, влагостоек, он устойчив к воздействию огня, не подвержен плесени и грибку. Кроме того, керамзитобетонная стена гораздо легче, чем, например, кирпичная, и возводится быстрее.
Недостатков у этого материала значительно меньше. К ним можно отнести:
- малопривлекательный внешний вид блоков, требующий дополнительных затрат на отделку;
- необходимость тщательного расчета при строительстве, учет прочности блоков;
- материал плохо «дышит».
Основными достоинствами газосиликатных блоков является их огнестойкость и экологичность.
Пористая структура газобетона позволяет этому материалу хорошо сохранять тепло, обеспечивать шумоизоляцию, а также поддерживать нормальный уровень влажности.
Несомненными достоинствами шлакоблока являются:
- доступная цена;
- скорость строительства;
- шумоизоляция;
- декоративные виды шлакоблоков не требуют дополнительной отделки.
В числе недостатков – непривлекательный вид обычных шлакоблоков (недекоративных), большой вес, неустойчивость к воздействию влаги (начинает разрушаться).
Еще один вариант – установка каркасной бани. Её отстраивают ещё на производстве, подгоняют материал, проверяют, всё ли учтено. Потом разбирают и строят уже на месте.
Как построить баню 6 на 6 своими руками

Строительство деревянной бани состоит из следующих этапов:
- Составления чертежа, плана конструкции.
- Разметки.
- Возведения фундамента.
- Сборки каркаса.
- Настила крыши.
- Внутренней отделки стен, пола, потолка.
Надежным фундаментом для бани считается ленточный, но его заливка обойдется дорого и полностью застывает он несколько месяцев.
На этом же этапе продумывается подвод коммуникаций к бане.
После сборки каркаса важно продумать гидро- и теплоизоляцию внутренней части помещения. Оставлять деревянную баню без утепления не стоит ‒ она будет долго нагреваться и быстро остывать
Внимание стоит уделить настилу пола в банных помещениях. Популярна система теплого пола
Дизайн
Интерьер и экстерьер бани полностью зависит от воли, вкуса и фантазии хозяина. Можно сделать классическую русскую баньку, создав изнутри атмосферу прошлого, при этом чувствовать себя богатым барином посреди березовых веников и дерева. Например, традиционный дизайн можно дополнить коваными и железными элементами, свисающими с потолка и стен травами, стилистической утварью типа деревянных ковшов и тазов.
Главное правило внутреннего убранства бани – это спокойствие и отдых. В месте релаксации никому не понравятся вычурные формы и яркие, кричащие цвета – от таких безумных идей лучше отказаться
А отдать предпочтение стоит спокойным натуральным оттенкам, которые помогут расслабиться и не обращать внимание на окружение. Ведь в посещении бани главное – комфорт и отдых, а глаза очень часто остаются закрытыми
Свет должен быть чуть приглушенным и теплым, мягким и рассеянным. Но при этом не стоит устраивать полумрак – в нем глаза напрягаются сильнее, а это не располагает к отдыху.
Современная баня дает простор в выборе решений и дизайне, однако лучше не перебарщивать с оригинальностью, и сделать все просто, в спокойных тонах, но со вкусом, и тогда гости точно оценят убранство всех комнат в домике.
Материалы
Прежде чем составлять проект будущей бани, необходимо определиться с материалами для строительства. Основные требования к материалам: экологичность, устойчивость к атмосферным явлениям и температурным перепадам. Лучший выбор для бани – кирпич или более традиционное дерево. Так же выбор зависит от климата местности и почвы.


Деревянную баню можно собрать из готового каркаса, построить из бревен или брусьев. Бревенчатая баня не требует дополнительного утепления. Постройку из брусьев нужно прокладывать льняным полотном после каждого ряда, чтобы строение было герметичным. Деревянную крышу можно покрыть профлистом, также можно металлической черепицей.


Кирпичные бани менее распространены, но более долговечны и не требуют постоянного ухода. Стоимость деревянных и кирпичных бань примерно одинакова. Для строительства стен лучше подходит красный или глиняный кирпич, для кладки печей и внутренней отделки – шамотный. Для окон и дверей предпочтительны деревянные материалы. Они наиболее надежны и долговечны.


Проекты
Составляя проект, рекомендуется не забывать о важных нюансах. Планировка делится на два основных помещения.
В одной делается комната отдыха, во второй присутствуют:
- парилка;
- душевая;
- туалет.
Размеры комнат внутри не обязательно должны быть одинаковые. Здесь все зависит от воли домовладельца.
Для компактного расположения печь обустраивается около стены со стороны комнаты отдыха. Можно также агрегат расположить в любой части объекта, это дело сугубо добровольное
Важно, чтобы пожарная безопасность при этом была на должной высоте
Важной деталью является тамбур, его присутствие дает возможность:
- сохранять тепло в зимнее время года;
- экономится свободная площадь в других помещениях.
В процессе проектирования бани 5х4 м необходимо иметь в виду существенные детали:
- вход позволительно делать с любой стороны, связано это с различными особенностями планировки участка и самого объекта;
- пространство между основным домом и баней делаются на минимальном расстоянии;
- расстояние между помещениями должно быть минимальным;
- труба для стоков должна находиться как можно ближе к канализационной яме;
- чаще всего парилка делается более просторной, чем помывочная.
Оборудуется мойка, в самой парилке находится печь дровяная или электрическая. В помещении делаются полки, ширина которых не менее 50 сантиметров. Отдельно можно сделать туалет.
Таким образом, 4×5 метра вполне достаточно, чтобы сделать хорошую баню, места для этого вполне может хватить. Соседнее помещение обогревается за счет тепла, поступающего из парной.
Второй вариант – это строительство и обустройство домика-бани. Вариант этот популярен. Можно сделать крыльцо и террасу размером 140 х 390 см, что вполне достаточно, чтобы вся семья уместилась с гостями за одним столом.
Предбанник реально сделать очень многофункциональным. В нем можно:
- хранить дрова;
- переодеваться;
- отдыхая, смотреть телевизор или петь караоке.
Обязательно следует обшить стену огнеупорным материалом; место, где стоит печка, обшивается нержавейкой, толщина которой не менее 2 мм. В такой компактной бане можно устроить небольшую душевую кабину и унитаз. Монтаж небольшого тамбура никогда не помешает, он может быть как перед раздевалкой, так и перед парилкой.
Преимущества веранды очевидны:
- это может быть идеальным местом для отдыха в теплое время года;
- широкий навес и наличие окон могут решить проблемы, если на дворе ненастная погода.
Важно при проектировании бани рассчитать размер каждого помещения. Следует учитывать при планировании: сколько человек будет находиться одновременно в помещении
Если будет париться 2-3 человека, то достаточно будет парилки не более 5 квадратных метров.
Предбанник удобно использовать для размещения в нем стола и стульев, а также телевизора и холодильника. Некоторые домовладельцы даже ставят СВЧ печь.
Предбанник рассчитывается по такому правилу: один человек – не меньше 1,2 квадратных метра свободного пространства.
Нередко в предбаннике ставится окно – стеклопакет, чтобы улучшить воздухообмен. Дверь, ведущая из парилки в предбанник, должна открываться в сторону предбанника.
Моечная – важное помещение, в котором должна присутствовать как холодная, так и горячая вода. Воду можно нагревать с помощью водонагревателя, который контактирует с печью
Расчет делается по одному квадратному метру на одного человека. Также рационально в моечной разместить душевую кабину.
Основные факторы, которые оказывают влияние на проектирование помещения:
- габариты печи и ее технические особенности;
- расстояние между печью и окружающими предметами в комнате;
- количество людей, которое может одновременно присутствовать в помещении;
- размеры полок и их расположение.
Говоря о расчете в среднем одного квадратного метра на человека, следует учитывать, что в эту площадь не входят квадратные метры, которые занимают различные предметы, расположенные в парилке, а также проходы. Высота парилки составляет порядка двух метров.
Такие параметры дают возможность для максимального обогрева небольшого помещения.
Желательно, чтобы комната по длине и ширине превосходила два метра. Полки нередко делаются даже более одного метра, при длине в 2,2 метра. Такие размеры позволяют с комфортом разместиться практически любому человеку.
Основные параметры проекта бани 4 х 5 метра, защищенной от ветра и дождя:
- площадь по внешнему основанию – 20 м2;
- площадь внутренняя – 12 м2;
- веранда – 3 м2;
- парилка – 5 м2
- моечная – 4,3 м2;
- предбанник – 3,5 м2.
Мы видим, что план бани 4х5 м сделать несложно. Но можно купить баню уже готовую, это будет стоить в районе 500 тысяч рублей, но сюда не входит цена отделки и утепления.
Заключение
Планировка бани 4х6 с моечной и парной отдельно, как можно убедиться по фото — это отличный и современный вариант, преследующий, главным образом, достижение повышенного комфорта при использовании. Однако не стоит полагать, будто один факт разделения двух зон уже сам по себе является гарантом желанного результата. Для решения поставленной задачи следует тщательно проработать все детали проекта, включая планировку комнаты для отдыха и размещения предбанника. Самые удачные, на наш взгляд, реализованные проекты бани 4х6 мы размещаем ниже — чтобы вы имели представление об определенных стандартах и знали, от чего следует оттолкнуться.












































![6 достоинств проекта бани 6х4 с мансардой [+10 фото]](https://par-torg.com/wp-content/uploads/2/a/f/2af0b0bc9ffbd5143029c1617af56532.jpeg)

























![6 достоинств проекта бани 6х4 с мансардой [+10 фото]](https://par-torg.com/wp-content/uploads/3/f/a/3faf729f38948c14c5566cb4efdb882b.jpeg)











