Использование систем подсветки в дизайне сауны
Использование в сауне системы подсветки вместо привычных ламп и светильников становится популярнее. Выбираются различные формы осветительных приборов и их оттенки. Стеклянная дверь не пропускает достаточно света внутрь сауны. Потому там довольно темно и разумно добавить освещения.
Готовые кабинки для сауны поставляются различных размеров, выполненные из разных пород дерева, но в основном из осины, липы и некоторых хвойных видов древесины.
Подсветку следует вмонтировать в помосты из древесины, участки для сидения и лежаки. Светодиоды дают возможность добавить света в отдельные элементы конструкции и поверхности. Можно подобрать подсветку различных оттенков, в зависимости от фантазии и размеров помещения.
Двери в мини-сауны, как правило, полностью стеклянные или представляют собой деревянную раму с большим прозрачным стеклом.
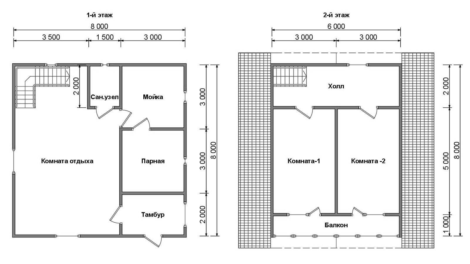
8х8
- большой простор для интеграции вспомогательных помещений;
- необходимость зонирования размещенных объектов;
- возможность обустройства просторной террасы;
- раздельное размещение парилки и мойки;
- 3-4 спальных местах на мансарде;
- при желании можно оформить и компактный бассейн.
Вот уж где можно действительно оторваться! Проект бани 8 на 8 с мансардой может включать буквально все, что ваша душа пожелает: начиная от удобного предбанника и просторного входа и заканчивая просторной бильярдной наверху по соседству со спальной комнатой. Квадратная основа постройки позволяет использовать буквально каждый сантиметр свободной площади с пользой для дела. Можно даже оформить выход на балкон. Разве не замечательно выйти и подышать свежим воздухом, наслаждаясь прекрасным отдыхом?

Конечно, для того, чтобы комфорт был не только на бумаге, но и на практике, есть смысл позаботиться о надежной гидроизоляции напольного основания. В таком случае вы заметно продлите срок службы используемых материалов и добьетесь практически идеальной безопасности использования постройки.




Особенности
Обустроить пространство бани красиво и уютно, чтобы ее зоны соответствовали отведенным им функциям, является не такой уж простой задачей
Важно продумать основную стилевую линию будущего интерьера. От выбранного дизайна будет зависеть подбор строительных материалов, меблировка, приобретение дополнительных декоративных аксессуаров
Нельзя забывать и об особенностях использования помещений в условиях резкого перепада температуры и высокой влажности.
Все элементы интерьера обязаны отвечать технике безопасности, высокому уровню комфорта и необходимой функциональности. Поэтому для отделки внутренних банных комнат применяют практичные натуральные материалы с высоким эксплуатационным сроком, устойчивые к экстремальным температурным режимам. Перед тем, как приступить к дизайну каждой отдельной зоны в пространстве бани, необходимо составить подробную планировку и расчет материалов для каждого помещения (предбанника, парилки, моечной и зоны отдыха). Рассмотрим основные критерии.


Для отделки поверхностей внутри помещений необходимо использовать экологически чистые материалы, обладающие следующими качествами:
- повышенной износостойкостью;
- низкой проводимостью тепла;
- устойчивостью к агрессивному влиянию горячего пара и влажного воздуха.
К таким материалам относятся натуральное дерево в любой форме, силикатный кирпич, керамическая плитка, натуральные камни. Интерьер нужно спроектировать как, чтобы все необходимые в бане предметы и аксессуары (ведра, ковши, веники, головные уборы и прочая банная утварь) были доступны для моющихся людей. Категорически запрещается применять в дизайне декоративные предметы из пластика или металла.
Нельзя использовать в обустройстве предметы с острыми углами и материалы, образующие скользкие поверхности. Это необходимо для безопасности во время прохождения банных процедур. Этот пункт особенно важен для семей с маленькими детьми и престарелыми родителями. Для максимального комфорта и полноценного расслабления рекомендуется оформлять стены, пол и потолок в теплых светлых тонах.

Популярные проекты
Как я сказал, не вижу смысла описывать конкретные примеры лучших проектов, над которыми трудились гуру дизайнерского искусства, поскольку то, что приводит в восторг одних людей, у других вызывает отвращение. Но, несмотря на вкусовые предпочтения, сводят с ума абсолютно всех людей:
- дом-баня;
- парильня с бассейном;
- баня с беседкой и барбекю.

Дом-баня – конструкция, пользующаяся небывалой популярностью, так как комфортабельна, презентабельна и многофункциональна. Кроме того, она экономит место на участке. Дизайнеры обожают трудиться над воссозданием роскошного «наряда» для неё, так как она позволяет воплотить в реальность самые смелые мечты.
Убранство, как правило, имеет исторический характер. Потому что исторические стили отличаются особым шармом. Сооружение, красующееся в изящном одеянии, – это облицовочное сырьё, изготовленное из ценных древесных пород, роскошная мебель, украшенная позолотой, шикарный текстиль, демонстрирующий обилие рюшей, дивные цветочные композиции, расставленные повсюду.
Парилка с бассейном – сооружение, занимающее по праву второе место в рейтинге популярных конструкций. Ключевой момент – это искусственный водоём в отдельной комнате. Её, как правило, оформляют в инновационных стилях. Баня с бассейном, демонстрирующая «платье», сшитое по последней моде, – это цветная подсветка, шезлонги, коктейли, музыка, живые растения.

Баня с беседкой и барбекю – конструкция, которая придётся и по вкусу, и по душе людям, предпочитающим не только попариться, как следует, но и хорошенько отдохнуть. Оформляется сооружение, как правило, в этническом направлении. «Изюминка» бани, разумеется, приветливая беседка и барбекю.
Такая парильня – это большая печка в беседке, чудесный плетёный столик и убаюкивающие кресла-качалки, уютный гамак, высушенные, но ароматные травы, красующиеся в углах конструкции, скатерти и салфетки с вышивкой, самовар. Дизайн бани с беседкой и барбекю может быть и другим, однако колорит деревни попросту влюблён в столь прекрасное сооружение.
Минуту внимания, уважаемые читатели. Даже самое шикарное строение можно испортить безвкусным внутренним убранством. Если Вы сомневаетесь в своих дизайнерских способностях, воспользуйтесь услугами специалистов.
Правильно оформленная баня из бруса – залог не только комфортного, но и безопасного отдыха!
Цитата мудрости: Всегда поступай правильно. Это порадует некоторых людей и удивит всех прочих (Марк Твен).
Материалы, применяемые для отделки парной
Материалы, предназначенные для подобных работ, довольно разнообразны. Среди них:
- вагонка;
- блок-хаус;
- имитация бруса;
- кафельная плитка;
- ориентированно-стружечная плита (ОСП).
Если говорить о пользе, эстетике и сравнить сложность монтажа различных материалов, то выигрывает по всем статьям вагонка. Однако ее стоимость, если брать в расчет качественные изделия, довольно высока. Попробуем рассмотреть все перечисленные отделочные материалы. Только так можно понять, какому из них отдать предпочтение.
Независимо от материала постройки, отделка парной начинается с крепления направляющих
Вагонка: плюсы и минусы отделочного материала
Алгоритм работы с вагонкой следующий. На стене фиксируются направляющие – брус или неширокая толстая доска, с шагом в 80-100 см. Их расположение совпадает с планируемым направлением вагонки.
Зафиксировав направляющие, укладываем между ними пласты минеральной ваты (трамбовать ее не нужно) и крепим пароизоляционный материал, швы которого проклеиваем при помощи алюминиевого скотча.
Вагонка – самый распространенный отделочный материал
Далее крепится обрешетка – рейки или доски, идущие перпендикулярно направляющим. Именно на них будет фиксироваться финишный слой – вагонка.
Предлагаем ознакомиться с фото обустройства бань внутри своими руками:
Нюансы отделки бани вагонкой внутри своими руками
Как любая работа, обшивка бани вагонкой имеет свои нюансы. Основным из них можно назвать крепление отделочного материала к обрешетке. Для этого можно использовать гвозди (лучше «германские», имеющие рифлёную поверхность). Однако оптимальнее использовать саморезы.
Микроклимат в парной периодически меняется, что приводит к расширению и усыханию древесины. Это со временем приведет к тому, что гвозди перестанут выполнять свою функцию – держать вагонку на обрешетке. В этом смысле шнек шурупа надежнее.
Вагонка – это натуральный материал, а значит дышаться в парной будет легко и приятно
Блок-хаус: что это за материал и как с ним работать
Блок-хаус (от английского block house) – это некое подобие вагонки (по способу соединения деталей). Однако внешний вид блок-хауса отличается. Готовая стена выглядит, будто выложена из бревен. Материал применяется для фасадов и внутренних отделочных работ.
Монтаж блок-хауса не отличается от вагонки, но в его применении есть один нюанс. Покрытие требует обработки антисептиками и антипиренами не реже раза в 2-3 года.
Имитация бруса: особенности, достоинства, недостатки
Снова технология облицовки стен схожа с вагонкой. Однако панели, имитирующие брус, шире. К тому же у них есть серьезное преимущество – при перепадах температур, влажности, они не трескаются. Это достигается за счет канавок по внутренней стороне, служащих для снятия напряжения древесины.
Выбор материала подчиняется тем же правилам, что и в случае выбора блок-хауса. Говоря о минусах, отметим только недобросовестных производителей, нарушения технологии сушки. Кроме «человеческого фактора» имитация бруса недостатков не имеет. Средний срок службы такого отделочного материала составляет 10-20 лет.
Имитация бруса визуально не отличается от настоящего стройматериала такой формы
Укладка кафельной плитки — выполнить самому или обратиться к профессионалам?
Кафельная плитка используется для отделки пола. Реже она применяется для стен. Неопытные домашние мастера опасаются, что самостоятельно такую работу не выполнить, однако это заблуждение. Для того, чтобы развеять сомнения, предлагаем вам ознакомиться с пошаговой инструкцией укладки плитки на примере полового покрытия кухни или прихожей. Алгоритм работ идентичен. Разница только в составе плиточного клея – для бани нужно выбрать состав, не боящийся высоких температур.
Правила обустройства
Грамотное обустройство бани – непростое создание уютного местечка для очищения тела. Оформление внутреннего пространства помещения с определенной спецификой требует не только комфорта, но и абсолютной безопасности. Обозначим основные требования, предъявляемые к внутреннему обустройству бани:
Противопожарные отступы при сооружении печи должны составлять не менее 0,5 метра: нельзя устанавливать печь в непосредственной близости от стен. Категорически запрещена установка печи вплотную к стене парной. Печь должна иметь собственный фундамент.




- Комплексная гидроизоляция всех поверхностей помещения, включая стены, пол и потолок, необходима для максимального увеличения срока службы материалов, из которого выполнена постройка.
- Хорошая теплоизоляция (основательное утепление всех каркасных конструкций) необходима для длительного удержания температуры в помещении во время приема банных процедур.
- Материалы, используемые для внутренней отделки, должны быть экологически чистыми. В приоритете натуральная древесина без дополнительной отделки. Нельзя использовать синтетические полимеры и пластмассу.
- Зонирование любых бань является стандартным приемом. Традиционно это предбанник, моечная и парная. В современных проектах предусмотрено место под зону отдыха.




Красивые идеи в интерьере
Современные дизайнеры, занимающиеся обустройством бань и саун, могут предложить к реализации стильные и модные проекты. От того, как оформлен интерьер бани, будет зависеть и настроение. Поэтому ориентироваться, выбирая дизайн, необходимо на свой вкус. Чтобы довести до завершения дизайн любого интерьера, необходимо добавить в него красивые и уютные аксессуары. В интерьере русской бани это могут быть лапти, самовары, медная посуда и прочие атрибуты деревенского быта.
Комнату отдыха в банях, оформленных в стилях кантри или прованс, можно украсить антикварной мебелью. Сюда прекрасно впишутся старые комоды, буфеты, бабушкины сундуки и трюмо. Для сауны, оформленной в восточном или турецком стиле, лучшим украшением станет облицовка стен парной яркой керамической мозаикой. Комнату отдыха в такой сауне можно превратить в экзотичную кальянную. Добавив немного яркого текстиля, разноцветных подушек и круглый стол на низких ножках, можно обустроить идеальное место для отдыха с семьей или друзьями.

О том, как построить баню и обустроить ее интерьер в «минималистическом» стиле, смотрите в следующем видео.
Советы
Обустройство бани всегда осуществляется с помощью древесины разных сортов, к парилке применимы только эти виды отделки. Своими руками можно создать любой интерьер, оформить понравившийся стиль
При этом важно помнить о безопасности и комфорте. Баня – то место, где должен быть настрой на отдых, важны положительные эмоции, вслед за которыми обязательно придет оздоровление организма

Специалисты советуют выбирать сосну для отделки комнаты отдыха и предбанника. Эстетически она выглядит очень привлекательно. Однако для парной она не подойдет, так как выделяет при нагреве смолу. К долговечным и красивым материалам относятся липа и лиственница, их стоимость существенно выше.
Печь лучше всего выкладывать из огнеупорного кирпича, размещать ее необходимо в углу. При этом к ней должен быть продуман удобный доступ. Если в обустройстве планируется применять декоративные элементы, для их изготовления нужно использовать огнеупорные материалы. Двери в бане принято делать из дерева. Но сейчас есть и стеклянные конструкции, которые по эксплуатационным характеристикам не хуже. Они внесут изюминку в оформление. В случае экстренных ситуаций стекло легче разбить.


Часто в бане устанавливают большие красивые оконные конструкции. Они украшают помещение и служат элементом дизайна. Изнутри их можно оформить бамбуковыми шторками, что гармонично впишется в любой стиль. Приверженцы экзотического стиля могут оформить пространство в восточном стиле. Турецкая баня располагает к отдыху и расслаблению. Даже небольшое помещение можно распланировать правильно.
Стены обычно отделывают красивой мозаикой. Цветовая гамма может быть разнообразной (от ярких насыщенных тонов до спокойных нежных оттенков). Лучше выбирать голубые, зеленые, бежевые краски, они действуют успокаивающе. В помещении устанавливают угловую скамейку и массажный стол. Раковину можно обустроить в виде маленького водопада.
Японская баня – офуро
В японских банях вместо горячего воздуха или пара отдается предпочтение горячей воде. Традиционная баня сэнто представляет собой обычный бассейн с теплой водой 40-45°С, куда приходят не очистить тело, а просто расслабиться и пообщаться с друзьями.




Офуро с виду напоминает ванну. Это купель круглой , овальной или прямоугольной формы, изготовленная из дуба, лиственницы или кедра. Печь погружается в воду и поддерживает необходимую температуру. В такую ванную следует погружаться так, чтобы вода не достигала сердца


Квартирный вариант купели оборудован наружной электрической печью, а водообмен происходит благодаря двум трубопроводам, один из которых откачивает воду в электропечь, через другой нагретая вода приходит обратно. Одинаковый уровень температуры поддерживается установленным датчиком.
6х8
- отличный вариант для достаточно просторного участка;
- можно разместить не только раздельную мойку и парную, но также комнату для отдыха, террасу;
- размещение сразу нескольких функциональных зон;
- для фундамента следует выбрать ленточный тип основания.
Наверняка о такой бане мечтает каждый хозяин. В сумме такая постройка дает почти что 50 квадратных метров, которые можно использовать для воплощения всех своих идей. Проект бани 6х8 с мансардой может включать размещение не гостевой комнаты наверху, но также и бильярдной, игровой, и даже кладовой. Однако следует предусмотреть надежную гидроизоляцию мансарды и серьезно отнестись к оборудованию вентиляционной системы. Все-таки ни о каком комфорте в той же бильярдной не может быть и речи, если воздух будет отличаться повышенной влажностью, а от пола будет отдавать гнилью и прочими не самыми приятными ароматами, свидетельствующими о деформации основания.
Также потребуется подумать и о кондиционерах в летний сезон, так как парилка в любом случае будет отдавать часть своего тепла на мансарду. Если все эти вопросы удастся решить, то вам можно смело позавидовать, так как удачно воплощенный проект бани 6х8 с мансардой — это уникальная возможность приятного отдыха в любое время года.
Дизайн парилки
Уже прошло то время, когда наличие бани как таковой делало загородный дом уникальным и неповторимым местом. Сейчас этим никого не удивить. Теперь, чтобы вашу парную запомнили на долгое время, надо удивить красотой, необычностью отделки этого помещения.
Парилка – это главное помещении бани, ради чего она возводится
Обшивку вагонкой сейчас делать не модно. Спросом пользуется специальная профилированная доска, которая изготавливается с разными фасадами. К примеру, имеется евро-вагонка, имитирующая кругляк. Так же, большой формат доски выпускается похожий на брус.
Все парные должны иметь достаточное количества посадочных мест, которые также выполняют роль лежаков. Сейчас, в магазинах банных принадлежностей можно найти лежанки, предназначенные для парилок. Их делают из разной древесины, которая имеет отличные оттенки. Методы обработки досок позволяют компоновать всяческие узоры на подголовниках и других частях.
В парилке абсолютно неуместны пластиковые и лакированные изделия
При желании можно самостоятельно соорудить деревянные конструкции парной, предназначенные для удобного размещения. Для этого идеально подойдут обрезки старого пиломатериала, толстые ветки деревьев (вместе с корой), а также спилы стволов. Весь материал подвергается столярной обработке на фуганке, после которой вы получите идеальные заготовки, пригодные для дальнейшего строительства.
Напольное покрытие парной делается из досок, или керамической плитки. На керамику дополнительно придется укладывать деревянные решетки, так как плитка является холодным материалом.
Деревянный пол будет всегда теплее керамики, если конечно ваша баня не оборудована системой «теплого пола»
Интерьер парилки может быть светлым или темным, выбирайте наиболее подходящую для вас цветовую гамму

Для отделки парилки рекомендуется использовать только лиственные породы дерева, не выделяющие смол при нагревании
Стеновое пространство обклеивается кусочками спилов стволов дерева. Это может быть как цельный (круглый) кусок, так и четвертина. Кору с заготовок удалять не обязательно. Она может стать прекрасным декоративным дополнением.
Дизайн сауны с бассейном
Если габариты помещения в доме позволяют, стоит дополнить сауну бассейном. Это даст возможность после жары парилки окунуться в прохладу, что полезно для здоровья. Оба помещения связаны между собой в интерьерном плане обычно напольным покрытием.
Если с площадью под домашнюю сауну определились, нужно решить какое количество людей одновременно должна вмещать парилка.
Сауна внутри состоит из натурального дерева без дополнительной обработки лаком. Для помещения с бассейном удачно подойдет плитка, мозаика или камень. Палитру обеих комнат можно сделать единой, подобрав подходящий оттенок древесины.
Для одного-двух человек можно обойтись и кабинкой-сауной, для семейного отдыха нужна большая площадь, для принятия гостей и вовсе необходимо озаботиться комнатой для отдыха, помимо непосредственно парилки в сауне.
Интерьер помывочной в бане. Особенности отделки
При оформлении важно учитывать эксплуатационные особенности помывочной в бане, интерьер помещения создается с учетом высокой влажности, компактности пространства, изменений температурных режимов. В помещении располагают ванную, душ, в просторных пространствах можно обустроить бассейн либо джакузи
В отделке стен и пола используется влагостойкое сырье. Оптимально применение камня, керамики, керамогранита.
Могут применяться устойчивые к высокой влажности породы дерева:
- абаши – отличается красивой текстурой, долговечностью;
- кедр – прочен, термостоек, с широкой палитрой оттенков;
- липа – долговечна, не деформируется и не меняет тон, обеспечивает приятный аромат;
- лиственница – эстетична, прочна, долговечна.
Обустройство парной выполняется без окрашивания и оштукатуривания стен и потолка. Для напольных покрытий помывочной используется керамогранит натуральных оттенков, матированная керамика. В помещении устанавливаются топчаны, скамейки, подставки, стеллаж для косметических средств. Освещение может быть светодиодным.























































