Проектируем баню
Баня из бревна с мансардой и террасой может быть больших размеров и содержать много дополнительных помещений, таких как бассейн, бильярдная и пр. Однако чаще всего строение включает в себя лишь основные помещения, такие как:

Наиболее важные помещения в бане
Далее ознакомимся с нюансами планировки каждого помещения.
Предбанник
Название этого помещения говорит само за себя — оно расположено перед парной. Изначально предбанник предназначен для использования в качестве раздевалки — здесь можно раздеться и сложить одежду. Однако чаще всего он используется еще и как комната отдыха. Для этого в предбаннике устанавливают стол и лавки либо стулья.

Предбанник обычно служит комнатой отдыха
Площадь предбанника зависит от количества отдыхающих. На каждого человека требуется как минимум полтора квадратных метра. Это, по сути, единственное требование к помещению. Конечно, желательно, чтобы оно имело естественное освещение, однако не забывайте, что окна — это источник теплопотерь.
Кроме того, с появлением современных энергоэкономных источников освещения потребность в естественном освещении снизилась.
Если вы не планируете проводить посиделки в бане, сэкономьте на предбаннике полезную площадь, к примеру, для увеличения моечной или террасы. Последнюю можно использовать для отдыха в летнее время вместо беседки.

Компактную парную проще прогревать
Парная
Парная, или сауна — это основное помещение в бане. Однако делать его слишком большим не имеет смысла. Чем больше объем этого помещения, тем дольше оно разогревается, и тем сложней поддерживать в нем постоянную температуру.
Правда, делать парилку на одного человека тоже не стоит, так как это небезопасно и не рационально. Длина одной стены парной должна быть не менее 2 метров. Ширина должна быть не менее метра.
При проектировании парной учитывайте, как именно вы хотите париться. При длине помещении в два метра и ширине в один метр лежа расположиться сможет только один человек. Чтобы установить двухъярусный полок, необходимо добавить в ширину как минимум полметра.

Оптимальные размеры полок
Если вы планируете делать полок двухъярусный, учтите, что требования предъявляются не только к площади, но и к высоте. Минимальное расстояние от верхней полки до потолка — 110 мм. При этом высота первой полки должна составлять как минимум 60 см, а высота второй полки — 40-50 см.
Душевая
Моечная не требует больших габаритов. Размеров полтора метра на полтора вполне достаточно, чтобы комфортно помыться любому человеку. Конечно, определяясь с размерами моечной, учитывайте собственные пожелания и потребности. К примеру, чтобы разместить ванну и душевую кабину, понадобится несколько квадратных метров.

Размеры моечной зависят от количества и габаритов сантехники
Желательно заранее определиться с сантехникой и ее габаритами, чтобы не ошибиться с размерами парной.
Санузел
Санузел не является необходимым элементом для бани. Но, если вы планируете использовать баню не просто для принятия водных процедур, а как место отдыха, он не помешает.
Как правилов санузле устанавливают унитаз и умывальник. Для этого достаточно 2-3 квадратных метров.
Терраса
Площадь террасы также зависит от количества людей, которые будут в ней отдыхать. Классическим вариантом является ее расположение вдоль стены. При этом глубина составляет метр-полтора.

Терраса может использоваться вместо беседки
Если баня предназначается для летнего отдыха в большой компании, как я уже говорил, ее площадь можно увеличить.
Комната отдыха
Гостевая комната представляет собой зал, в котором может поместиться большая компания. Под гостевую комнату обычно отводят всю мансарду. Единственное, за счет пространства этого этажа можно выполнить балкон, который практически никогда лишним не бывает.
Если гостевая комната вам не нужна, мансарду можно использовать в качестве комнаты отдыха или в любых других целях по вашему усмотрению.

Мансардный этаж позволяет обустроить просторную гостевую комнату
Определившись с площадью всех комнат по отдельности, посчитайте общую площадь бани и подготовьте чертёж первого и мансардного этажа. На нем постарайтесь рационально расположить все необходимые вам помещения, чтобы создать собственный проект.
Второй этаж
На втором ярусе можно расположить удобную комнату для отдыха, мансарду для чаепития и даже спальню. Если тут будут предусмотрены жилые помещения, нужно тщательно продумать проект отопления. В противном случае этими комнатами можно будет пользоваться только в теплую погоду. Если все правильно оборудовать, то в двухэтажной бане смогут круглогодично проживать 2-3 человека.
При составлении проекта двухэтажной бани 6х8 м стоит обратить внимание на высоту потолка. Если сделать верхние комнаты слишком низкими, это приведет к дискомфорту и не позволит полноценно отдыхать в бане
Оптимальной высотой потолка второго этажа в бане будет 2,2-2,5 м.
Что касается покрытия крыши, то оно должно быть качественным и уложенным правильно. Лучше сразу позаботиться об этом нюансе, чтобы после не бороться с протекающей крышей. В зависимости от финансовых возможностей, можно выбрать в качестве покрытия шифер либо черепицу.
Однако при желании можно установить здесь санузел, кабинет и другие полезные комнаты. Площадь 6х8 м позволяет реализовать любые интересные задумки сполна.
Баня с мансардой: преимущества и специфичность проектов
Подбирая в сети необычные решения для застройки дачного участка, все чаще можно встретить привлекательные фото бань с мансардой. Владельцы земельных участков нередко прибегают к использованию этого архитектурного элемента с целью улучшить и расширить возможности в отношении планировки подобного здания.
Мансардный этаж можно приспособить для гостевой спальни или бильярдной
Мансардный этаж подходит для обустройства помещений различного назначения:
- комнаты отдыха;
- спортивного зала с тренажерами;
- бильярдной;
- кладовой для хранения банного инвентаря, полотенец и проч.
Но лучшим решением все-таки станет применение мансарды под организацию комнаты для приятного времяпрепровождения.
Преимущества использования проектов бань с мансардой
Чаще всего пространство под крышей используется в качестве чердака, где просто хранятся вещи. Однако дизайнеры смогли найти ему более удачное применение после того, как возрос спрос на строения с мансардным этажом.
На небольших участках можно разместить малогабаритную постройку
Преимущества подобных проектов очевидны:
- У владельца появляется возможность существенно сэкономить свободное пространство, а также рациональным образом распределить полезную площадь.
- Проекты бань с мансардой 6х8 м и более могут рассматриваться как гостевые домики, пригодные для временного проживания родственников и друзей, приехавших погостить на дачу.
- Бани, имеющие мансарду, выглядят намного привлекательнее, чем приземленные одноэтажные здания. При этом стоимость таких сооружений значительно ниже, чем цена на строительство двухэтажного здания.
Баня с мансардой будет уютным уголком отдыха в любое время года
Если грамотно подойти к использованию пространства под крышей, можно снизить расходы на его отопление. Мансардный этаж может отапливаться за счет банной печи, благодаря чему в этой зоне будут поддерживаться комфортные микроклиматические условия. Если же баня рассчитана исключительно на эксплуатацию в летнее время, пространство под крышей может выполнять функцию жилой комнаты. Превосходным решением станет организация летней кухни с открывающимся красивым видом из окон.
Специфичность компактных проектов домов-бань с мансардой
Даже типовые проекты зданий могут различаться между собой габаритами и внутренними планировками. Чаще всего владельцы дачных участков, ввиду отсутствия свободной площади, отдают предпочтение именно компактным строениям. По этой причине наиболее востребованными считаются проекты бань с мансардой 6х6 м и 4х6 м.
Несмотря на свои размеры и очевидную простоту планировок, такие строения способны обеспечить все условия для полноценного отдыха. Они идеально подойдут для семей с небольшим количеством людей или владельцам загородных участков с малой площадью.
Типовой проект бани с террасой и мансардой
Типовые проекты бань с мансардой 6 на 4 м обычно включают стандартный набор помещений:
- парилку;
- тамбур;
- душевую;
- веранду или террасу.
В некоторых компактных проектах не рассматривается наличие веранды или террасы. В этом случае вся площадь входной зоны отводится под обустройство комнаты отдыха. На мансарде организуется жилое помещение, предназначенное для гостей. Здесь же может располагаться кладовая для хранения банных принадлежностей. Место для установки лестницы подбирается так, чтобы она не загромождала внутренние помещения.
Преимущество бань с мансардой 6х6 м и 4х6 м заключается еще и в том, что подобные строения занимают минимум пространства на дачном участке и позволяют сэкономить придомовую территорию. При этом планировка, как и внутренние размеры помещений, может варьироваться по желанию застройщика.
Мансарда должна быть небольшой высоты, поскольку более высокие помещения считаются полноценным этажом и облагаются налогом
Стоит ли строить баню с мансардой?
Если на земельном участке достаточно места для того, чтобы возвести баню, размер которой составит 6х8 м, то такой площади уже будет вполне достаточно комфортного размещения большой компании. Однако многие идут дальше и строят двухэтажные здания под баню. В этом случае отличным вариантом будет мансарда на втором этаже.
Этот момент необходимо продумать еще на этапе создания проекта, так как строительство мансарды потребует меньше стройматериалов, поэтому на их закупке можно сэкономить.
Стоит заметить, что при создании проекта дома с баней 6 на 8 м необходимо обратить особое внимание на фундамент здания. Если оно будет двухэтажным, то и его основа должна быть максимально прочной
Проект бани 6 на 8 м с мансардой позволяет максимально эффективно использовать землю, которая имеется в наличии. Таким образом, можно получить оптимальное количество полезной площади, где легко разместится компания из 5-6 человек. Более того, здания с мансардами всегда смотрятся очень привлекательно внешне, поэтому баня станет настоящим украшением территории, да и пригласить попариться гостей никогда не будет стыдно.
Материалы для строительства
Баня с мансардой своими руками создается из разных строительных материалов, в числе которых:
- клееный брус;
- кирпичные блоки;
- оцилиндрованные бревна;
- пеноблоки;
- газобетон;
- каркасные блоки;
- древесно-стружечные плиты;
- сип-панели.
В декоративной отделке сруба используются следующие материалы;
- вагонка;
- блок-панели.
Дерево или кирпич
Проект бани 6х4 с мансардой может строиться из древесины либо кирпича.
Древесина экологична, долговечна, практична, безопасна в эксплуатации, после обработки пропитками устойчива к влажности и изменениям температурных режимов. При использовании утеплителя повышаются шумо- и теплозащитные характеристики здания. В работе используются клееный и оцилиндрованный брус, доски, прессованная стружка.
В перечне преимуществ древесины:
- устойчивость к изменениям температурных режимов;
- благоприятное воздействие на организм человека (расслабляет, улучшает состояние нервной системы);
- сохранение тепла;
- пар в помещениях из дерева мягкий и влажный.
Конструкции из дерева выдерживают массу надстроек, поэтому возвести мансарду при необходимости можно позже. Необходимо учитывать высокую стоимость стройматериала. Пожароопасность древесины требует обеспечения дополнительного варианта эвакуации с мансардного этажа, а также обработки бревен специальными составами, замедляющими распространение огня.
Кирпичные блоки долговечны (срок службы составляет 50 лет), прочны, эстетичны. Они являются экологичными материалами, т.к. производятся из натуральных компонентов (глина, песок, известняк, безопасные красители). В зависимости от климатических условий, дизайнерского решения и нагрузки здания используются клинкерные, керамические, огнеупорные, облицовочные кирпичи.
Стройматериал позволяет усложнить конструкцию банного комплекса. Здание может быть квадратной, прямоугольной, асимметричной, многоугольной конфигурации. Изменение стандартной формы не снизит эксплуатационных характеристик здания, тепло- и шумоизоляция останутся высокими.
Требуется учитывать большие затраты на топливо при эксплуатации кирпичной бани, необходимость в гидроизоляции помещения. Кирпичи массивны, требуют выполнения надежного фундамента из бетона для долговечной и безопасной эксплуатации.
Газовые и пеноблоки
Баня 6 на 8 с мансардой может быть выполнена из газобетонных и пеноблоков. Материалы бюджетны, практичны, легко монтируются и заменяются при необходимости
Важно учитывать неустойчивость материалов к воздействиям высоких температур и влажности. Оптимально выполнить из газобетона пристройку, входной блок, скомбинировав с досками и брусом
Можно построить 1 этаж из дерева, дополнить конструкцию мансардой из пенобетона.
Преимущество газо- и пеноблоков:
- доступная стоимость;
- простой монтаж, т.к. работы можно выполнить самостоятельно;
- небольшая масса блоков, снижающая нагрузку на несущие конструкции банного комплекса;
- устойчивость к возгоранию и перепадам температур, высокие пожаробезопасные характеристики;
- стойкость к воздействию грибка, плесени;
- крупногабаритные блоки можно распиливать, придавать им требуемую конфигурацию для авторского проекта, упрощая монтаж;
- материалы не имеют токсичных испарений;
- блоки не деформируются, не растрескиваются.
При монтаже пеноблоков важно выполнить теплоизоляцию здания для предотвращения утечек тепла и повышения шумоизоляционных характеристик
Каркас или сип-панели
Проект бани 6х6 с мансардой может быть выполнен по каркасной технологии и с применением сип-панелей.
Проекты каркасных бань с мансардой реализуются из деревянного бруса либо металлических конструкций. Технология требует обшивки внешней части здания декоративными панелями, материалы должны быть экологичными, огнестойкими, не деформироваться от перепадов температур и высокой влажности. Между элементами конструкции крепится уплотнитель, требуется внутренняя отделка.
СИП-панели позволяют возвести здание в краткие сроки. Материалы отличаются небольшим весом, могут использоваться при облегченном фундаменте ленточного типа. Панели имеют многослойное строение и обеспечивают качественную тепло- и шумоизоляцию. Выпускают панели с влагостойкими характеристиками для оформления бань.
Обобщение по теме
Баня с мансардой – это удобное, многофункциональное строение, которое можно использовать по-разному. Ее строительство обойдется дешевле строительства двухэтажного здания, при этом хозяева получат полезные дополнительные квадратные метры, которые можно использовать по-разному. Решать вопрос о том, какой материал выбрать для строительства, нужно в каждом конкретном случае. Те, у кого в приоритете безопасность, чаще всего отдает предпочтение огнеупорным материалам (кирпичу и газобетону). Те, кто предпочитает ходить в традиционную русскую баню, для ее возведения обязательно используют дерево.
«Золотая середина»
Баня – удивительное место для отдыха. Здесь можно попариться, помыться, очистить тело и успокоить душу. Польза ее посещений очевидна: пребывание в бане приводит к изменению ритма сердечных сокращений, меняется циркуляция крови во всех частях тела, ткани получают усиленное питание, происходит стимуляция естественных процессов регенерации.
Парные процедуры оказывают благотворное действие на дыхательную и выделительную систему. Вот почему посещение бани иногда является частью профилактики многих легочных заболеваний. Уменьшается эмоциональная активность, уходит психическое напряжение, мышцы хорошо расслабляются, при этом человек испытывает прилив бодрости. Он и становится мощным стимулом для рождения особой любви к описываемому времяпрепровождению.

Парные процедуры полезныИсточник lasexta.com
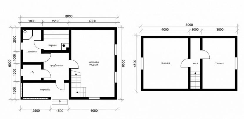
Любители такого вида отдыха при приобретении загородного участка сразу задумываются и о строительстве бани. Для ее возведения не нужно много места. Тем, кто мечтает сэкономить время и деньги специалисты предлагают рассмотреть проекты бань из бруса 6 на 8 с мансардой. Это нечто среднее между крупной постройкой и возведением компактной бани. Меньшее помещение будет иметь урезанную функциональность, большее потребует больших материальных вложений и больше места. Баня 6х8 – золотая середина. У нее будут достаточные размеры для того чтобы оборудовать полноценный банный комплекс.
На первом этаже спокойно разместится парная и моечная. Выносить их на второй этаж нецелесообразно: это будет значительно дороже и не оправдано с точки зрения удобства. Помимо этого внизу удастся организовать просторный предбанник, из которого на второй этаж будет идти лестница. Описываемые размеры помогают сделать тамбур между предбанником и выходом наружу. Без него никак не обойтись, если баня будет использоваться и в зимнее время года. Такой коридор не позволит холодному воздуху проникнуть внутрь бани. На втором этаже можно оборудовать удобную комнату для отдыха.

Типичная планировка бани 6х8 с мансардой и террасойИсточник novostroi24.ru
Закладка фундамента
Срок службы любого будущего здания зависит от фундамента
При выборе способа обустройства основы нужно обратить внимание на тип грунта и общую нагрузку. Наиболее универсальным фундаментом является ленточный
В зависимости от материалов он может быть бутовый, кирпичный или бутобетонный. Для строительства бани оптимальным является ленточный бутовый фундамент на песчаной подушке – надежный и простой в закладке.

Глубина заложения фундамента
По периметру будущей бани роется траншея глубиной около 50 см, дно которой засыпается песком. В канаву наливается немного воды и песок тщательно утрамбовывается. Толщина получившейся подушки должна быть не менее 15 см. Для увеличения прочности фундамента сверху можно засыпать щебень, после чего приступают к монтированию опалубки.

Траншея для ленты фундамента
Видео – Деревянная опалубка своими руками
Обрезные доски или прочную фанеру толщиной от 10 мм устанавливают по обеим сторонам траншеи, скрепляя их с помощью стяжек укосов и хомутов. При этом все крепежные элементы должны остаться снаружи, а внутрь помещается арматурный каркас.
Стенки опалубки изнутри выстилают пленкой или рубероидом, чтобы предотвратить избыточное впитывание жидкости из бетона в древесину. Внутрь опалубки помещается армирующий каркас, связанный из арматуры диаметром 10 мм.
Видео – Армирование и опалубка мелкозаглубленного ленточного фундамента
Далее – все это заливается бетоном. Его можно заказать в специализированной организации или приготовить самостоятельно. Чтобы закладка фундамента была достаточно экономичной, в состав бетона вводят гравий из расчета:
- 1 часть цемента;
- 3 части песка;
- 5 частей гравия.

Заливка ленточного фундамента
При заливке надземной части фундамента необходимо позаботиться о вентиляции пространства под полом первого этажа бани, чтобы влага лучше выветривалась. Продухи – отверстия в верхней части фундамента могут быть любой формы, главное, чтобы они располагались равномерно по периметру строения и находились симметрично напротив друг друга. Высота от земли до вентиляционных отверстий должна быть не менее 30 см, а шаг размещения от 2,5 до 3 м. Чаще всего продухи создают с помощью асбестоцементных или пластиковых труб, установленных в наземной части фундамента при его формировании.
Как вариант, можно дополнительно сделать кирпичный или бетонный цоколь.
Видео – Как разобрать деревянную опалубку
По периметру готовой основы, после высыхания (около трех недель), стелется рубероид или гидроизол и укладывается ряд брусьев толщиной около 50 мм – подкладочный ряд. Это необходимо для защиты будущего пола сруба от гниения.

Гидроизоляция ленточного фундамента

Уложена подкладочная доска
Проекты
Проекты бани с мансардой различаются габаритами и планировкой. К наиболее популярным из них относят сооружения 6х6, 6 на 4 м. Несмотря на то, что строения компактные и обычно получаются простыми, они обеспечивают полноценный отдых. Подобный вариант подойдет для небольшого количества людей, а так же тем, кто не располагает лишним местом на участке.
План проекта 6х4 м предполагает размещение:
- парилки;
- душевой;
- тамбура;
- веранды.
Некоторые малые проекты не предполагают наличие веранды. Иногда площадь входной зоны превращается в комнату отдыха. В этом случае на мансардном этаже размещают гостевую комнату. Иногда мансарда предполагает размещение кладовой.
Лестница размещается так, чтобы не загромождать помещение бани. Конструкции 6х6 или 4х6 м также не займут территорию участка. Оборудованная мансарда позволит сделать площадь строения более полезной. При этом внутренние размеры комнат бани могут варьироваться по желанию владельца при строительстве.
Проект бани с мансардой 6х8 м обычно вмещает все необходимое для отдыха большой компании. Такая планировка строения включает даже санузел. Чаще здесь предусмотрена большая терраса, есть комната для отдыха 20 м кв. Комната вмещает стандартную мебель и даже большой стол. За столом уместится компания из нескольких человек, при этом останется место для свободного пользования.
Строение включает классическую душевую, комнату для отдыха. На мансардном этаже разместится свободная спальня. Это может быть бильярдная, теннисная или тренажерный зал. Материалом изготовления строения послужит профилированный брус.
Удачным компромиссом являются планировки бань 5х5 5х6, 5 на 9 м. Чтобы посещение небольшой бани доставляло удовольствие, необходимо тщательно все рассчитать
Расположение помещений важно составлять с учетом продуманного плана. Например, в маленькой бане 5х5 м разместятся прихожая, помывочная, парная, комната отдыха или кладовая на мансардном этаже
Выбор подходящего проекта сруба – это всегда поиск компромисса. Баня должна устраивать по всем габаритам
Выбирая баню 6х9 или 7 на 8 м, важно серьезно подойти к разметке участка. Правильно продумайте размещение бани (особенно, если земли всего 6 соток)
Еще одним важным параметром является стоимость строительства. Сруб больших габаритов потребует большей территории на участке. Например, сруб с параметрами 4х6 м обойдется на 10000-15000 рублей дороже, чем баня 4х5 м. Для бани большей площади потребуется больше времени и топлива на отопление. Температура в парной должна быть достаточной для жара.
Важным параметром выбора размера бани является количество людей, которые будут ее посещать. Если количество любителей попариться не превышает двух человек, достаточно построить малогабаритное и невысокое строение. Для большой семьи и регулярных гостей нужно большое строение. Чтобы правильно обозначить планировку, нарисуйте чертежи.
Бани с мансардой (проекты, цены, планировки)
Опишем самые удачные в плане планировки варианты. Существуют готовые проекты, разработанные по всем строительным нормам. Но ознакомиться с основными сведениями о конструкции бани с мансардой и террасой необходимо.
Компактный дом-баня 4х6
Такой вариант считают универсальным. Строение не требует большой части участка. Проекты деревянных бань с мансардой представлены на рисунках.

Типовой проект бани 4х6Источник makemone.ru
По запросу покупателя комнату отдыха возможно сделать в круглом дереве, что уберет необходимость отделки стен и придаст визуально привлекательный вид стенам. В жилом доме-бане уровень высоты первого яруса не рекомендуется делать ниже 2,5 м.
Проект бани 4х6 в разрезеИсточник banya-expert.com
Планировка бани 4х6Источник banya-expert.com
Планировка первого этажа может быть и иной. Еще два варианта разметки помещений представлены на рисунке.
Варианты планировки бани 4х6Источник mizhu.ru
Такой проект «под ключ» будет стоить от 375 000 руб.
При проектировании застройщик имеет возможности на базе проекта 4х6, по необходимости, увеличить площадь до 6 на 6 м. Также его можно «подогнать» под меньшие габариты: 3 на 3 м, 4 на 4 м, 5 на 5 м.
Дом-баня 6х9 с бассейном
Проект привлекателен тем, что довольно просторный для банного отдыха и по пожеланиям заказчика может быть и объектом для регулярного проживания небольшой семьи.

Проект бани 6х9Источник expertbrusa.ru
Нижний этаж здесь отводится под банную структуру, а верхнее помещение для жилья. В общем, такой объект включает:
- баню;
- помывочную;
- санузел;
- помещение для отдыха;
- мансарду;
- 2-е спальные комнаты;
- террасу;
- бассейн.
Баня с бассейномИсточник plusiminusi.ru
Размер плавательной зоны подбирается в зависимости от имеющегося у клиента бюджета и свободных метров его участка. Бассейн также можно организовать закрытого типа внутри здания.
Цена дома-бани «под ключ» будет от 635 000 руб.
Большой дом-баня 15х15 с цокольным этажом
Чаще всего подобные варианты подбираются для круглогодичного проживания семьи. Поэтому несколько усложнены в проектировании, и имеют интересную архитектурную составляющую. Для постоянной эксплуатации здания разумно добавить несколько помещений. Такой проект включает на 1-м этаже:
- парную комнату;
- тамбур;
- душевую и туалет;
- комнату для отдыха;
- кухню;
- гостиную;
- гараж;
- террасу.

Дом-Баня 15х15Источник remdesign.info
На 2-м этаже (мансарда):
- холл;
- санузел;
- две спальные комнаты;
- гардеробную;
- балкон.
Большинство заказчиком желают спроектировать одновременно и цоколь. Такой этаж отдается под все подсобные помещения. Таким образом, дом баня с мансардой превращается в просторный и полноценный коттедж.
Стоимость проекта может быть от 30 000 руб., «под ключ» от 1 450 000 руб.
Как выбрать и реализовать проект двухэтажной бани
Изготовление бань на основе готовых решений – очень популярная на рынке услуга. При этом владельцы земельных участков могут быть полностью уверены, что обретут, заказывая строительство здания в 2 этажа, проект бани из бруса или бревна, который будет соответствовать всем стандартам и нормам безопасности. В этом случае можно получить не только существенную экономию времени, но и качественный результат, подкрепленный гарантией.
В стандартную комплектацию строительные компании обычно включают:
- сруб (или коробку);
- фундаментное основание;
- перегородки;
- кровлю;
- дверные и оконные конструкции.
Проекты двухэтажных бань под ключ и цены на их реализацию зависят от габаритов сооружения и материала, выбранного для строительства.
Баня с мансардой из бруса — одно из недорогих популярных решений
Подбирая размер будущей постройки, необходимо учитывать следующие нюансы:
- тип размещения бани на участке (отдельное сооружение или пристройка к жилому зданию);
- общую площадь земельного участка и количество свободного места;
- число людей, которые будут посещать баню;
- толщину межкомнатных перегородок и стен;
- тип утеплителя и материал отделки;
- внутреннюю планировку и ее особенности.
Характеристика проектов и цены двухэтажных бань из бруса и бревна
Для строительства бани подойдут практически любые материалы, однако самыми популярными считаются брус и бревно. Чтобы определиться с тем, какой вариант более приемлем, необходимо сравнить характеристики каждого из них.
Сравнительная характеристика материалов для строительства бани:
| Критерий | Проекты двухэтажных бань из бруса | Проекты двухэтажных бань из бревна |
| Цена материала, руб./м³ | Нестроганый (5000) | Неокоренное (5000) |
| Профилированный (10000) | ||
| Высушенный (10000) | Оцилиндрованное (10000) | |
| Клееный (25000) | ||
| Особенности монтажа | Длительность строительства от 2 до 6 недель, возможность выполнения работ собственными руками | Длительность строительства от 2 до 8 недель, работы выполняются специалистами, ввод в эксплуатацию через 6 мес. |
| Экологическая чистота | Экологичность (за исключением клееного бруса, при его покупке следует проверять характеристики клеевого состава) | Экологически чистый материал |
| Степень усадки | Клееный – 2% | 15% |
| Профилированный – 5 % | ||
| Нестроганый – 10% | ||
| Особенности отделочных работ | Конопатка стен необходима лишь в тех случаях, когда используется необработанный брус, профилированный материал этого не требует | Стены нуждаются в конопатке, а также шлифовке |
| Декоративные свойства | Современный внешний вид, большой выбор дизайна | Аутентичность, присущая традиционным русским парилкам |
| Цена строительства бани 6х6 м, руб. | 409000 (63 м²) | 463000 (64м²) |
Для строительства современной бани желательно использовать брус. На рынке присутствует несколько разновидностей этого материала, каждая из которых обладает собственными преимуществами и недостатками, свойствами и техническими характеристиками.
Например, строганый брус может иметь размер сечения в пределах 150-200 мм. Его сечение бывает квадратной или прямоугольной формы. Данный вариант считается самым бюджетным, но в отношении эксплуатационных характеристик он существенно проигрывает другим видам бруса. Профилированному материалу присуща геометрическая четкость форм и размеров, благодаря чему строительство бани значительно упрощается и ускоряется. Размер сечения находится в диапазоне от 100 до 150 мм.
Клееный профилированный брус считается самым высококачественным вариантом материала. Проекты, созданные на основе этого сырья, имеют наиболее высокую стоимость.
На сегодняшний день владельцы дачных участков с ограниченной площадью могут позволить себе даже такую роскошь, как строительство комфортной бани. Это стало возможным благодаря современному подходу к проектированию зданий. Главное – грамотно подойти к выбору планировки и строительного материала.























































